
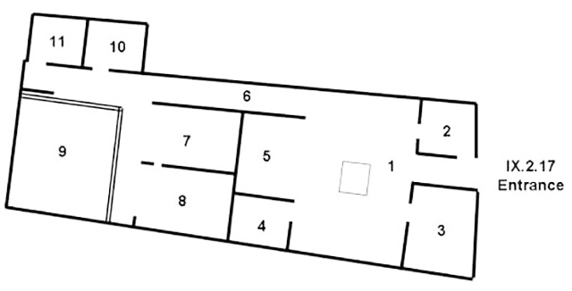
The room numbers are those referred to on the pompeiiinpictures pages at IX.2.17.
This plan is to help you accurately locate the rooms shown in the photographs of this house.
Please be aware that the room numbers shown reflect the sequence in which we photographed the rooms and will differ from any other plans or records both published and unpublished.