Part 1 Part 2

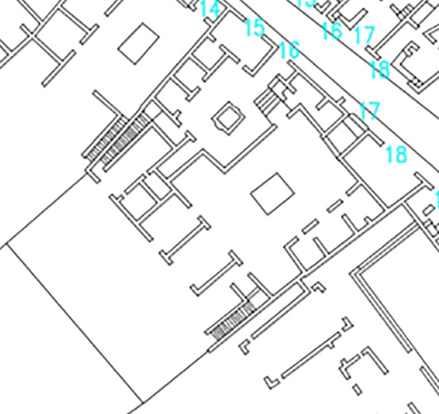
VI.17.15 shop, 16, and 17 entrances, 18 shop, combined plan.
Plan courtesy Dobbins, J. J. and Foss, P. W., 2008. The World of Pompeii. Oxford: Routledge, CD-ROM.
According to
Fiorelli –
VI.17.15-18 –
“Due case unite costituivano forse l’abitazione di una sola famiglia.
Esse avevano
due ingressi separati sulla strada e due botteghe, stando in relazione tra loro
per gli atrii, entrambi tuscanici, e ciascuno con tre cubicoli da un solo lato.
La prima
inoltre no.16, teneva accanto allo ingresso la cucina, poco piu innanza la
gradinata che la metteva in communicazione con la casa seguente, e nel fondo il
triclinio, una seconda scalinata, e due oeci.
La seconda,
casa no.17, che sembra la piu nobile, conteneva le ali, il tablino, due fauci,
ed un’altra gradinata di discesa.
L’edificio poi
era terminato nel piano piu alto con un loggiato, che ora era distrutto.
In uno dei
pilastri che fronteggiano la strada leggevasi:
M . CERRINIVM
AED . SALINIENSIS
ROG ”)
See Fiorelli, G.
(1875). Descrizione, (p.433)
See Pappalardo, U., 2001. La Descrizione di Pompei per Giuseppe Fiorelli (1875). Napoli: Massa Editore. (p.159)
(translation –
"Two united houses constituting perhaps the dwelling of a single family.
They had two separate entrances on the roadway and two shops, linked to the atriums, both atriums were Tuscanic, and each with three cubicula only on one side.
The first No. 16, had the kitchen near to the entrance doorway, nearby were the steps linking with the next house, and at the rear was the triclinium, a second stairway, and two oeci.
The second, house No. 17, which seemed the most noble, contained ala, the tablinum, two corridors, and another steps leading down.
The building was finished on the highest floor with a loggia, which was now destroyed.
In one of the pillars that fronted onto the roadway, the following could have been read -
M . CERRINIVM
AED . SALINIENSIS
ROG ”)

VI.17.9, on left with letter G, then 10, then 13, linked house at 16-17 in centre, and 23-25, on right.
Part of a plan by Francesco La Vega, c.1800-1810. Now in Naples Museum.
DAIR 76.1262. Photo
© Deutsches Archäologisches Institut, Abteilung Rom, Arkiv.

VI.17.9-27 Pompeii. Detail from 1827 plan by Ing.
del. R: Officio Topografico, Gaspare Marchesi.
Now in the Istituto Geografico Militare, Corpo di
Stato Maggiore, Sezione di Napoli, Cartella 82.24.
See Kockel V. 2005. Un capitolo dimenticato
della cartografia di Pompei Gaspare Marchesi e il Reale Officio Topografico di
Napoli: Rivista di Studi Pompeiana 16, pp. 11-36.

According
to Piranesi, this plan shows:
“Plan général de la continuation de la rue, et des
bâtimens adjacens a la maison du chirurgien.”
See Piranesi, F, 1804. Antiquités de la Grande Grèce : Tome II. Paris : Piranesi and Le
Blanc, pl. XLIV.
Translating as –
“General plan of the continuation of the street, and the buildings adjacent to the Surgeon's house”.
(The House of the Surgeon in relation to the plan above would be situated to the north (right) of these buildings, on the opposite side of the roadway to the letter A, (on right of plan).
The entrance to atrium at VI.17.13 is marked 3. This joined with atrium 3, 5 and 6 would show the House of the Three Atriums.
Atrium 4 does not seem to exist in reality but may be showing the atrium marked 3 in the wrong location and should be superimposed above 3.
The entrance to atrium 5 must be VI.17.16.
The entrance to atrium 6 must be VI.17.17.
On the left of the plan are the entrances at VI.17.25, and 24, leading to the street-level peristyle by VI.17.23.
VI.17.25 seems to be described as a “Basilica”, presumably as it was found with no rooms at the sides of the atrium.
In one of his plans, he shows columns on either side of the centre of the atrium, as would be seen in a Basilica, as seen at VIII.1.1.
The lower No.13 would appear to be VI.2.4.
The lower No.14 would appear to be VI.2.7.

VI.17.17 Pompeii. September 2021.
Looking west towards
entrance doorway on Via Consolare with steps leading to vestibule. Photo courtesy of Klaus Heese.

VI.17.17 Pompeii. May 2011. Looking west towards steps on Via Consolare, leading to vestibule.

VI.17.17 Pompeii. September 2021.
Entrance doorway
with steps, looking west. Photo
courtesy of Klaus Heese.
![VI.17.17 Pompeii. September 2004. Looking west at three steps on Via Consolare, leading to vestibule.
According to Fiorelli, on one of the pilasters that fronted onto the Via Consolare, one could read –
M. CERRINIVM
AED. SALINIENSES
ROG. [CIL IV 128]
See Pappalardo, U., 2001. La Descrizione di Pompei per Giuseppe Fiorelli (1875). Napoli: Massa Editore. (p.159).](6%2017%2017_files/image010.jpg)
VI.17.17 Pompeii. September 2004. Looking west at three steps on Via Consolare, leading to vestibule.
According to Fiorelli, on one of the pilasters that fronted onto the Via Consolare, one could read –
M. CERRINIVM
AED. SALINIENSES
ROG. [CIL IV 128]
See Pappalardo, U., 2001. La Descrizione di Pompei per Giuseppe Fiorelli (1875). Napoli: Massa Editore. (p.159).

VI.17.17 Pompeii. September 2021.
Steps leading to vestibule. Photo
courtesy of Klaus Heese.

VI.17.17 Pompeii. September 2004. Steps to vestibule, with lizard on step.

VI.17.17 Pompeii but shown as VI (Ins. Occ.) 13 on photo. Pre-1937-39.
Entrance doorway with capital on south side.
Photo courtesy of American Academy in Rome, Photographic Archive. Warsher collection no. 1516.

VI.17.17 Pompeii. Showing original capital on top of door pillar on south side.
(Undated photograph, Fox Collection, Courtesy of Society of Antiquaries).

VI.17.17 Pompeii. Undated photograph showing capital on south side of entrance doorway.
Foto
Taylor Lauritsen, ERC Grant 681269 DÉCOR.
DAIR
31.2449. Photo © Deutsches Archäologisches Institut, Abteilung
Rom, Arkiv.

Foto
Taylor Lauritsen, ERC Grant 681269 DÉCOR.
DAIR
31.1686. Photo © Deutsches Archäologisches Institut, Abteilung
Rom, Arkiv.

VI.17.17 Pompeii. February 2021.
Side of Capital facing onto Via Consolare, on display in Antiquarium. Photo courtesy of Fabien Bièvre-Perrin (CC BY-NC-SA).

VI.17.17 Pompeii. December 2007. First side of capital from
door pillar, photographed in storage at Forum Granaio

VI.17.17 Pompeii. December 2007. Detail of capital from door
pillar, photographed in storage at Forum Granaio

Foto
Taylor Lauritsen, ERC Grant 681269 DÉCOR.
DAIR
31.2862. Photo © Deutsches Archäologisches Institut, Abteilung
Rom, Arkiv.

VI.17.17 Pompeii. February 2021.
Capital from side of door pillar, facing onto vestibule of entrance doorway, now on display in Antiquarium.
Photo courtesy of Fabien Bièvre-Perrin (CC BY-NC-SA).

VI.17.17 Pompeii. December 2007. Second side of capital from
door pillar, photographed in storage at Forum Granaio

According to Piranesi this shows a
–
“Démonstration de la porte principale de la maison située
vis-à-vis de la Basilique, ainsi que du Chapiteau en grand de la porte de la
maison a trois Cavedium (atriums).”
See Piranesi, F, 1804.
Antiquités de la Grande Grèce : Tome II.
Paris : Piranesi and Le Blanc, pl. LVI.
(Translating as –
“Demonstration of the main door of the house located opposite the Basilica, as well as the large capital of the door of the house with three Cavaedium (atriums).
Fig.
1 appears to show the doorway of the house facing the Basilica so must be the
same as the capital shown by Piranesi at VI.2.4, House of Sallust/Acteon. It
appears to show that the left capital is missing along with the top of the
doorway. The right capital would have been still in situ, which would appear to
agree with the findings of VI.2.4.
Fig.
2 appears to show a doorway with doorway damaged and capitals no longer in
situ, presumably the House of the three atriums (VI.17.16/17 and 13?) as the
capitals are the same as that shown enlarged in fig. 3.
Fig.
3 appears to show the capitals in more detail and would appear to be from the
doorway at VI.17.17 of the House of the three atriums (VI.17.16/17 and 13?).
The detail is however slightly different from the actual capitals shown above which have more acanthus leaves and the figure is shown from the waist up only, with a cloak, and holding pan pipes rather than a cup.
The capital shown may belong to either the doorway at VI.17.16, or VI.17.13, but a Corinthian capital is shown on this doorway.

VI.17.17 Pompeii. December 2007. Detail of Capital, on left,
photographed in storage at Forum Granaio

VI.17.17 Pompeii. May 2011.
South-east corner of atrium, looking east into a blocked doorway, with the remains of its threshold.
This doorway would have connected with VI.17.18.

VI.17.17 Pompeii. September 2021. Looking towards rooms on
south side of atrium. Photo courtesy of Klaus Heese.
According to Breton, the entrance doorway led to a large Tuscan atrium with an impluvium and cistern in a bad state, and a floor paved with fine black mosaic decorated with regularly spaced much larger white cubes. The left side of the atrium showed three cubicula and an ala: the three small rooms had retained their limestone thresholds and an indication of their door closures; in the first room was a recess in the wall for the bed.

VI.17.17 Pompeii. May 2011. Looking towards rooms on south side of atrium.

VI.17.17 Pompeii. May 2005.
Doorways to cubicula on south side of atrium. The cubiculum, on the left, has a bed recess in its south wall.

VI.17.17 Pompeii. May 2011. Doorways to cubicula on south side of atrium.

VI.17.17 Pompeii. May 2011. Looking east along south side of atrium.

VI.17.17 Pompeii. September 2021.
Looking south-west across atrium from entrance doorway,
towards ala. Photo courtesy of Klaus Heese.

VI.17.17 Pompeii. May 2011. Looking towards ala in south-west corner of atrium.

VI.17.17 Pompeii. May 2011. Looking towards west side of atrium, across site of impluvium (no longer visible).
On either side of the atrium would have been an ala, at the rear on the left would have been a doorway leading to corridors and steps down to lower floor.
In the centre of the rear wall (now blocked) would have been the tablinum (according to Fiorelli).
According to Eschebach, there was another blocked doorway leading to an oecus, and possibly a triclinium?
She says the tablinum, oecus and triclinium are no longer there.
See Eschebach,
L., 1993. Gebäudeverzeichnis und
Stadtplan der antiken Stadt Pompeji. Köln: Böhlau, (p.236).
According to
Tescione –
“All inizio del
1782 i lavori presso la Casa di C. Ceio riprendono dopo il crollo della loggia,
causato da infiltrazioni di acqua piovana.”
(trans):
"At the beginning of 1782, the work at the House of C. Ceio resumed after
the collapse of the loggia, caused by rainwater infiltration."
See Greco, G, Osanna, M. and Picone, R. (eds). 2020, “Pompei Insula Occidentalis, Conoscenza Scavo Restauro e Valorizzazione”, (“Pompeii, Insula Occidentalis, Knowledge, Excavation, Conservation and Enhancement”) published by “L’ERMA” di Bretschneider.) (p.587).
(See PAH, Vol 1, Part II, p. 10-12 (21.2.1782), (07.3.1782), (14.3.1782), (Note: these pages from PAH can be seen in VI.17.25, part 3)

VI.17.17 Pompeii. May 2011. Looking north along west side of atrium, with blocked doorways.

VI.17.17 Pompeii. May 2011. Looking north along west side of atrium towards west ala.