Part 2 Part 1

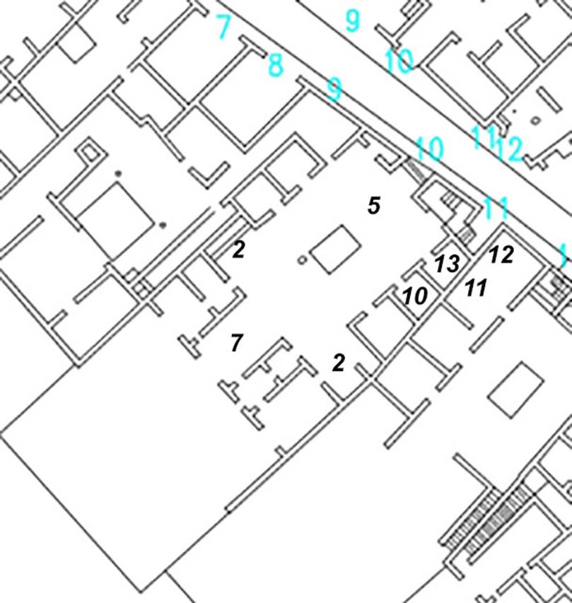
VI.17.10 Pompeii. Plan showing the room numbers of La Vega as identified by Allroggen-Bedel.
Base plan courtesy of Dobbins, J. J. and Foss, P. W., 2008. The World of Pompeii. Oxford: Routledge, CD-ROM.
According to the description by La Vega, of the atrium No.5 –
“From the 24th October to the 14th December we worked, with interruptions, to uncover this courtyard. The flooring was of black mosaic surrounded by a white band and it was scattered with pieces of various marbles placed irregularly: in the middle remained the marble basin for the collection of water, around which would have been, but only partly preserved around the basin, part of a band with a weave of various colours: at the side of the receptacle remained the cistern-mouth. The following pieces of this floor have been raised…………
On the facing side at No.2, there are two basins/tubs with pounded brick plaster (mattoni pesti).
The walls of this courtyard were painted, which is shown precisely on the indicated site, by a piece of preserved plaster.
With zoccolo/plinth of cornices and painted panels of various coloured false marbles; above the zoccolo were placed some large natural figures, monochrome red on a white background.”
(See Biblioteca della Società Napoletana di Storia Patria, ms. XXI-D-21 fol. 2v-3r.)

VI.17.10/9 Pompeii but described as VI.3.28 on photo. Pre-1937-39.
Double tub from north ala, numbered 2 by La Vega on plan above. Looking north-east from ala towards VI.17.9 and room 19 with two doorways.
Photo courtesy of American Academy in Rome, Photographic Archive. Warsher collection no. 287
Our thanks to Nicolas Monteix and Sandra Zanella for their confirmation of our identification of this location.
From La Vega’s description of the atrium No.5, it shows that across from the right Ala with the two tubs, designated by him on the drawing as the room No.2, was also the left Ala. Here was a mosaic with a meander pattern and in the wide opening to the atrium one of the two mosaic thresholds, with Arches and Maritime scenes, was cut out.
The second such mosaic was described as from room No.7: The threshold towards the courtyard was of a mosaic of varied colours, made of nine arches, with naval instruments and dolphins. This threshold can only have belonged to the tablinum, as all the other rooms in the atrium have only narrow door openings. In same room a large mosaic floor was found:
Alcubierre described in his report dated 12.11.1763, a mosaic (approx. 3.43m x 4.48m). The mosaic contained primarily a girdle of (diamonds) rhomboids in white, black, yellow, red and green. Then another band, like a labyrinth, of the same colours. Then another band of black, then another strip of crosshatching marked into squares, also in the black, triangles of red, black, blue, green and in the middle of the floor some minor fragments could be seen. About the paintings nothing was said.
The room described as No.10 corresponded to the preserved remains in the middle room left from atrium.
“From the 9th to the 17th of November we excavated this
room, which had a floor of black mosaic with white border all around, and white
rosettes sprinkled throughout, and it was found patched up by the ancients at a
site close to the threshold. The plaster was painted with following format: Red
zoccolo with a few lines, and large fronds of herbs, the panels above were
yellow with vases/pots in the middle, the bands that one could distinguish were
red, decorated with grotesque architecture: the decoration above had a white
background with various bands and grotesque architecture. On one side of this
room, there was in the wall, an undercut recess that ends with the floor. It was preserved without lifting a piece. (Si
e conservato senza levarci alcun pezzo).
A similar depression for a bed was seen in the black background decoration of Room No.12.
“From the 4th to the 20th of December 1763 we worked with some interruptions to excavate this room. Its floor was of white mosaic with two black lines all around: and a panel somewhat to the side consisted of a black border decorated interiorly with some ivy branches of the same black colour, on a white background - the middle part of the panel was missing. The wall plaster was black with stripes and grotesque architecture in various colours, and in the middle of some panels, which had between them the said architecture, there were draped figures, i.e. one for each panel.
There was a recess in one of the walls similar to that of the room No. 10, but bigger”
In the room next to the Ala, right from No.10, there is no depression for the bed.
In the room left (from No.10), next to the steps, you can still see the remains of a red zoccolo, and a yellow middle zone.
The remains of these decorations agree with La Vega description of room No.13 –
“From the 9th to the 18th of December, we excavated the indicated small room. The floor was of slabs of crushed brick (lastrico di mattoni pesto).
In the plaster the zoccolo has the red background: the bottom of the panels that lay above the zoccolo was yellow with some birds in the middle; the bands that divided these squares were red, embellished with grotesque architecture, which still adorned the decoration above that had a white background.”
From the rooms on the right side of the atrium, nothing remains.
However, two rooms in the next-door house (VI.17.12-13) meet the description of rooms nos. 11 and 12.
La Vega says later that in the space described as no.12, he had discovered a “sotterraneo” (underground/cellar, etc).
These characteristics – bed recess and sotterraneo, were both next to the cellar stairs in VI.17.12.
The room described as no.11 is probably identical with the room next door (VI.17.13), where the remains of the yellow background central zone remains were preserved.
From here (room 11), a total of 6 pictures were cut, La Vega’s description of the decoration and cut motifs is -
“From the 15th of November to the 4th of December (1763) we excavated this room.
The floor was of white mosaic, with small black bands around.
In the plaster, the base of the zoccolo and some lines were black, and the panels closed with those lines were yellow, as was the decoration above, all embellished with various stripes, branches and panels. And we have cut the following 6 pieces of plaster, painted as follows –
1) a view of a garden with pergolas, statuettes, a goat, and some men, with a yellow background in a yellow field formed of clear white.
This was cut on the 18th of November; it was broken into two pieces.
2) another view of a garden, with statues and pergolas, on a yellow background as the previous. Other similar had been found, but not being well-preserved had been left on their site.
3) view of country with four figures, and three dogs, on a turquoise field.
4) contains a rock in the water, with a figurine dressed in white, with open arms in act of admiration: two other naked men with legs in the water in the act of admiration as the first: another figure with club in hand in the act of wanting to trounce a sea monster.
5) (approx. 0.40 high x 0.48 wide) - another view of marina, with man on a horse running in the water, and another figure who is watching the first.
This was found with some pick-marks.
6) (approx. 0.46 each side), containing a mask with a curious repair, which was a little scratched on a cheek - (contiene un mascarone con accomodatura curiosa, quale e un poco scorticato ad una gota). These 5 pieces were cut on the 12th of December.
Two pieces more of the same yellow plaster were cut, one of
on.12 each side, and other on.12 by on.9, to mend any painting. (per
accomodare alcuna pittura).
Paintings identified numbers 1-5 can be identified with those in Naples Museum.
About No.6, Alcubierre said was a not well-preserved mask, perhaps it was not cut out, contrary to the statement of La Vega.
The first 2 paintings on yellow backgrounds (9476, 9512).
The three following are mythological landscapes (9504, 9477 and 9478).
All 3 paintings are red brown-framed and come from yellow walls, they must have formed the central motif of the front wall and both side walls.
Shown is a landscape with shepherd’s and animals, possibly Paris on the Ida (9504).
Andromeda chained to a rock, and being freed by Perseus (9477).
Phryxus riding on the ram, Helle sinking in the sea (9478).
The two vistas, 9476 and 9512, probably come (like their counterparts which were not cut) from the side panels.
It is difficult to determine where the other paintings were removed from.
With the secure identification of numbers, 2, 5, 7, 10 and 11 plus the not provable – from 12 and 13 in La Vega’s legend, there remain a limited number of eligible rooms. There still remained the rooms between the atrium and the terrace, with the exception of the tablinum and the room next to the left Ala – but hardly anything from this side of the house is preserved.
See
Allroggen-Bedel - Die malereien aus dem
Haus Insula Occidentalis 10, in Cronache Pompeiane II, 1976 (p.144-183).

VI.17.9-10 Pompeii. Found 28th October 1763. Apollo.
Now in Naples Archaeological Museum. Inventory number 9541.
December 2019. Photo courtesy of Giuseppe Ciaramella.

VI.17.9-10 Pompeii. Found 28th October 1763. Apollo.
Now in Naples Archaeological Museum. Inventory number 9541.
PAH, 1,1, “Found in the city, in the week that ended 29th October 1763, up to ten pieces of ancient paintings, and lately more at the end of last week, showing Diana the Huntress and Apollo, and others; having been to see them all, sig. Paderni ordered that only two of the first ten paintings be cut, and the other eight being useless, should be thrown into the ground.”

VI.17.9-10 Pompeii. Found 28th October 1763. Artemis, also known as Diana.
Now in Naples Archaeological Museum. Inventory number 9301.
November 2018. Photo courtesy of Giuseppe Ciaramella.

VI.17.9-10 Pompeii. Found 28th October 1763. Artemis, also known as Diana.
Now in Naples Archaeological Museum. Inventory number 9301.

VI.17.9-10 Pompeii. Found 20-29th October 1763. The myth of Archemoros.
Now in Naples Archaeological Museum. Inventory number 8987.

VI.17.9-10 Pompeii. Three paintings found 20-29 October 1763.
The top two companion paintings were found in “Cività”.
The painting below was also found in “Cività”.
See Antichità di
Ercolano: Tomo Quarto: Le Pitture 4, 1765, pages 319-321, pl. 64.

VI.17.9-10 Pompeii. Found 20-29 October 1763. Apollo, Chiron and Asclepius or Aesculapius.
Now in Naples Archaeological Museum. Inventory number 8846.
This painting and inventory number 9127 were found on two walls in the same room.
See Antichità di Ercolano: Tomo Setto: Le
Pitture 5, 1779, p.217-221, pl.50.
(This has also been entered into VIII.3.14, although it was not excavated until the early 1800’s).

VI.17.9-10 Pompeii. Found 20-29 October 1763. Nymphs in a Bacchic rite.
Now in Naples Archaeological Museum. Inventory number 9127.
This painting and inventory number 8846 were found on two walls in the same room.
See Antichità di Ercolano: Tomo Setto: Le
Pitture 5, 1779, p.217-221, pl.50.
(This has also been entered into VIII.3.14, although it was not excavated until the early 1800’s).

VI.17.9-10 Pompeii. Found 20-29 October 1763.
The above two paintings were found on two walls in the same room.
See Antichità di Ercolano: Tomo Setto: Le
Pitture 5, 1779, p.217-221, pl.50.

VI.17.9-10 Pompeii. July 2017. Group of paintings in the Naples Archaeological Museum.
Foto Annette Haug, ERC
Grant 681269 DÉCOR.

VI.17.9-10 Pompeii. Found 20-29 October 1763.
Mask, the best and most perfect example, with a green background.
Now in Naples Archaeological Museum. Inventory number 9808.
According to Pagano and Prisciandaro, this mask was found 2nd July 1763 (found also with inv. nos. 9854 and 9853 below) and so we have also included it in HGW04, from where they say it was found.
See Pagano, M. and Prisciandaro, R., 2006. Studio sulle provenienze degli oggetti rinvenuti negli scavi borbonici del regno di Napoli. Naples: Nicola Longobardi. (p.44) (PAH 1, addendum 113, n.9)

VI.17.9-10 Pompeii. Found 20-29 October 1763 or 2nd July 1763
Mask, found at the same time as the other two, but the colour was faded, and the face was ruined by a pointed instrument.
Now in Naples Archaeological Museum. Inventory number 9854.

VI.17.9-10 Pompeii. Found 20-29 October 1763 or 2nd July 1763.
Now in Naples Archaeological Museum. Inventory number 9853.
Mask found at the same time as the other two, but the colour was faded, and the face was ruined by a pointed instrument.
Another two masks were intentionally destroyed by the Bourbon excavators, who thought the masks left in situ, might fall into the hands of others, thereby reducing the uniqueness (and value) of the ones taken into the royal palace at Portici.
PAH 1, addendum p. 146, dated 12 November 1763 said -
It was ordered to D. Camillo Paderni, not to dare to lay a hand on the ancient paintings which are met in the excavations without first referring to His Majesty, as the decision did not belong to Paderni to decide which of the paintings should be taken from the site or which should remain, now that the King had heard with horror that many of the aforementioned antique paintings had been demolished.
PAH 1, addendum p.146, dated 25th January 1764 said –
By an attestation of Antonio Scognamiglio, foreman excavator, authenticated by the notary Iennaco of Torre Annunziata he pointed out, that by order of D. Camillo Paderni paintings that he estimated were useless, were destroyed, breaking the plaster on which they were painted with picks.
According to Allroggen-Bedel, all of the above paintings were found in the same room.
She quoted a passage by La Vega, from Giornale dello Scavo, in which she identified the room as No.3.
Dalli 20, alli
29 Ottobre 1763 si e scoperta questa stanza. Il pavimento e di musaico, con
rosone nel mezzo ed alcuni ornati attorno, negri sopra fondo bianco, e fascia
che cinge questo ornato con meandro a vari colori: la soglia della porta verso
il cortile e di portasanta. Tale soglia di lunghezza pal. 4 9/12 e larghezza
pal 1 9/12 si e levata alli 20 novembre, ed il pavimento alli 17, dello stesso
mese.
Le pareti sono
ornate da zoccolo con cimasa e base, a chiaroscuro giallo, distinte con dei
riquadri abbeliti d’alcuni fogliami sopra campo rosso. Il di piu che rimane
delle stesse pareti ha il fondo rosso, ed era distinta la parte principale in
vari riquadri p(er) mezzo di alcune fasce abbelite di meandri, il sopra ornato
ed il fregio sono ornati con riquadratura, grotteschi, e figure, delle quali se
ne sono trovate in essere undici pezzi.”
(translation: “From 20th – 29th October 1763, we discovered this room. The floor was mosaic with a rose in the middle and some decorations around it, black over a white background, the border that surrounded this decoration was a varied coloured meander: the threshold of the doorway towards the courtyard was of “Portasanta”. This threshold was approximately 1.25m x 0.46 wide and lifted up on 20th November, and the floor of the 17th of the same month.
The walls were decorated with a zoccolo with finial and base of a clear yellow, distinguished with panels embellished of foliage on a red background. The bit that remained of the same walls had a red background, and the main part was separated in various panels by some bands embellished with meanders, the upper part was decorated, and the frieze was ornamented with panels of grotesque architecture and figures, which were found in eleven pieces.)
See
Allroggen-Bedel - Die malereien aus dem
Haus Insula Occidentalis 10, (p.147-8) In Cronache Pompeiane, II, 1976
(p.144-183)

VI.17.9-10 Pompeii. c.1795 copy of the mosaic floor “from room no 3”.
See Gli ornati
delle pareti ed i pavimenti delle stanze dell'antica Pompei incisi in rame:
1838, p. 7 and mosaic tav. 30.
It is also in Gli Ornati, 1795, Vol. 1, Tav. 44. (Allroggen-Bedel gives the reference as Ornati I Taf. 46.)
Now in Naples Archaeological Museum. According to Allroggen-Bedel it is installed in the museum floor.
See
Allroggen-Bedel - Die malereien aus dem
Haus Insula Occidentalis 10, (p.147-8) In Cronache Pompeiane, II, 1976, p.
149 and note 11.
Mosaic identified by Alcubierre to Tanucci, 29th October 1763 –
En la misma
estancia de las referidas Pinturas se ha descubierto otro pavimento de Moysayco
de 8 pal. por 7 pal., y 5 on. el qual forma un Circulo en el medio con seys
flores, blanco y negro, y al contorno una faja de ramos, y otras flores Negras,
en Campo blanco: Y otra faja al extremo y Contorno del dicho Moysayco bien
labrada con los colores Negro, Amarillo, colorado, y verde: Cuyo pavimento se
devera cortar tambien.
(translation: In the same room as the aforementioned paintings another mosaic pavement has been discovered of size 2.11m by 1.96m which has a circle in the middle with six petals, white and black, around the edges is a girdle of branches and other black flowers, on a white background: Another band is on the outer edge of the said mosaic, well crafted with black, yellow, red and green: This pavement is likely to be cut also.)
See
Allroggen-Bedel - Die malereien aus dem
Haus Insula Occidentalis 10, (p.147-8) In Cronache Pompeiane, II, 1976, p.
148.

VI.17.9-10 Pompeii. April 2019. Mosaic in centre of photo is that “from room 3”.
Floor re-laid in room of Naples Archaeological Museum. Photo courtesy of Rick Bauer.

VI.17.9-10 Pompeii.
Sketch of mosaic floor with meander pattern, foliage and geometric centre.
See Debret F. (1777-1850), Piranesi F. (1758-1810), LaBrouste H.
(1801-1875). Voyage en Italie-De
Naples à Paestum, pl. 114.
INHA Identifiant numérique : NUM PC 77832 (07). See
book on INHA Les documents sont placés sous « Licence Ouverte
/ Open Licence »
Etalab

VI.17.9-10 Pompeii. c.1800.
Mosaic from flooring, originally taken to Museum at Portici, before the Naples Archaeological Museum.
Written below is “Mosaic pavement found at Pompeii.
Accurately coloured from the original drawing made in the year 1800, in the possession of the Late Samuel Lysons Esq.”
See Cooke Cockburn & Donaldson, Pompeii, vol.2, Chapter III, p.14.

VI.17.9-10 Pompeii. c.1875 lithograph of the mosaic floor that matches the description of La Vega, “from room no 3”.
This is the upper mosaic of two on the lithograph.
The lithograph has at the top the word Pompeii and at the bottom Casa delle Vestali.
The lower mosaic on the lithograph is “SALVE” from VI.1.7/24/25, the House of the Vestals and is shown as from there in PPM.
See Carratelli,
G. P., 1990-2003. Pompei: Pitture e Mosaici: Vol. IV. Roma: Istituto della enciclopedia
italiana, p. 49.
The upper mosaic in the lithograph is not shown in PPM under the Casa delle Vestali at all.
Photo courtesy of Rick Bauer.

VI.17.9-10 Pompeii. July 2017. Wall painting found 12th November 1763.
Now in Naples Archaeological Museum. Inventory number 8603.
Foto Annette Haug, ERC Grant 681269 DÉCOR.

VI.17.9-10 Pompeii. May 2010. Wall painting found 12th November 1763.
Now in Naples Archaeological Museum. Inventory number 8603.
A mosaic measuring 13 pal. by 17 pal. was discovered (approx. 3.43m x 4.48m) of white, black, yellow, red and green.
According to Pagano and Prisciandaro, the floor of the room in which the paintings of the bows of the ships were found, had a mosaic showing the same arches in which dolphins, anchors, tridents and ships could be seen.
On a wall were discovered paintings that showed painted architecture and ships, and each arched doorway showed the bow of a ship.
Of the paintings found, only three showing the five boats were cut and preserved, the others were left where they were found.
Also possibly provenanced from this room might be the paintings, nap 8691, 8817, 8876, 9437, showing respectively a griffin, sphynx, sea monster and landscape.
See Pagano, M. and Prisciandaro, R., 2006. Studio sulle provenienze degli oggetti rinvenuti negli scavi borbonici del regno di Napoli. Naples: Nicola Longobardi, (p. 45).
See Pagano M., 1997. I diari di scavo di Pompei, Ercolano e Stabia di Francesco e Pietro La
Vega (1764-1810). Roma, (p.17).

Mosaic floor in Naples Archaeological Museum,
Looking into Room CXXXIV (134), from
doorway threshold and from room CXXXV (135). June 2024.
Photo courtesy of Giuseppe Ciaramella.
According to Abbate - in the index for the
1859 edition -
No.96 would appear to be a mosaic floor, as
seen in the centre of the above floor.
In the index it is provenanced from the
Villa of Diomedes at Pompeii?
No.97 would appear to be the above
border/edge of the mosaic floor and is also said to be from Villa of Diomedes.
See Raccolta
de più interessante Dipinture e di più belle Musaici rinvenuti negli Scavi di
Ercolano, di Pompei, e di Stabia. 1859.
Napoli.
By the 1865 and 1871 edition with index,
these mosaics are just quoted as being from Pompeii.
However, the border/edge may be from
VI.17.9/10 (?).
(Note: this mosaic has also been entered
into Villa of Diomedes.)
According to the Naples Archaeological Museum book on “La
Collezione Magna Grecia” (p.68) -
“La
sala CXXXIV contiene un pavimento rettangolare policromo, che Giambattista
Finati riteneva provenisse dalla Villa di Diomede, avente sui lati corti motivi
a mura di citta con archi e simboli marini, al centro, quadrati con fiori e
cespi di foglie racchiusi da un cornice a motivi vegetali.”
(Room
CXXXIV contains a polychrome rectangular floor, which Giambattista Finati
believed to have come from the Villa of Diomedes, having on the short sides
motifs of city walls with arches and marine symbols, in the centre, squares
with flowers, and tufts of leaves enclosed by a cornice with plant motifs.)
(Note:
Giambattista Finati was the Inspector General of the Real Museo Borbonico.)
Both mosaics are now set in the floor of the Naples Museum, in the pinacoteca, sala 4.
See
Allroggen-Bedel - Die malereien aus dem Haus Insula Occidentalis 10,
(page 163-5).
(Note: Now in Room CXXXIV, (134).

VI 17.10 Pompeii (?) or Villa of Diomedes (?). July 2019.
Looking across centre of mosaic floor, on display in Naples Archaeological Museum.
Photo courtesy of Giuseppe Ciaramella

VI 17.10 Pompeii (?) or Villa of Diomedes (?). July 2019.
Detail of mosaic flooring. On display in
Naples Archaeological Museum. Photo
courtesy of Giuseppe Ciaramella

VI 17.10 Pompeii. 1843 drawing of mosaic with doors with sea features, similar to description by La Vega.
The doors are in the sequence given by La Vega but an extra door with anchor on each end gives 11 rather than 9 doors.
There is no description given in Raccolta 1843 to indicate where it may be from, and the plates are unnumbered.
It may be the second similar mosaic mentioned or may not be from this house.
See Raccolta
delle pui interessanti Dipinture e di pui belli Musaici, 1843.
According to Allroggen-Bedel, in La Vega’s room 8, between the 7th and 14th November, 3 paintings were excavated and cut out showing the prows of boats.
Two similar mosaics with boats were found in the same house as the paintings.
La Vega described mosaic thresholds as coming from room 2 and room 7, where under arches, ships prows and other sea-faring attributes could be seen.
The mosaic thresholds, (approximately 3.56m x 0.97m) composed of white, black, yellow, red and green, showing architecture of 9 doors in which you could observe the following -
In the first door - a trident,
in the 2nd - dolphins,
in the 3rd - an anchor,
in the 4th - one dolphin,
in the 5th - a stern of a ship with rudder,
in the 6th - another dolphin,
in the 7th - another anchor,
the 8th is not specified,
in the 9th - a rudder and a trident.
Both mosaics are now set in the floor of the Naples Museum, in the pinacotheca, sala 4.
(Note; now on display in Room CXXXIV, First Floor, “Magna Grecia” Gallery, and provenanced as being from Villa of Diomedes).
See Allroggen-Bedel - Die malereien aus dem Haus Insula Occidentalis 10, (pages 163-5).

VI 17.10 Pompeii ?, or Villa of Diomedes ?. June 2024.
Detail from mosaic of “doors”, starting with an anchor, trident, two dolphins, and an anchor.
On display in Naples Archaeological Museum,
Room CXXXIV. Photo courtesy of Giuseppe Ciaramella.

VI 17.10 Pompeii ? or Villa of Diomedes ?. June 2024.
Detail from mosaic of “doors”, starting with one dolphin, and a stern of a ship with rudder, another dolphin and an anchor.
On
display in Naples Archaeological Museum, Room CXXXIV. Photo courtesy of
Giuseppe Ciaramella.

VI 17.10 Pompeii ? or Villa of Diomedes ?. June 2024.
Detail from mosaic of “doors”, starting with two dolphins, a trident and an anchor.
On
display in Naples Archaeological Museum, Room CXXXIV. Photo courtesy of
Giuseppe Ciaramella.

VI 17.10 Pompeii ? or Villa of Diomedes ?. July 2019.
Detail from mosaic of “doors”, starting with an anchor, trident, two dolphins, an anchor, one dolphin, and a stern of a ship with rudder.
On
display in Naples Archaeological Museum.
Photo courtesy of Giuseppe Ciaramella.

VI 17.10 Pompeii? or Villa of Diomedes ?. July 2019.
Detail from mosaic of “doors”, starting with a stern of a ship with rudder, a dolphin, and anchor, two dolphins, and a trident.
On
display in Naples Archaeological Museum. Photo
courtesy of Giuseppe Ciaramella.

VI 17.10 Pompeii ? or Villa of Diomedes ?. June 2024.
Detail from mosaic of “doors”, showing stern of a ship with rudder. Photo courtesy of Giuseppe Ciaramella.
On display in Naples Archaeological Museum, Room CXXXIV.

VI 17.10 Pompeii ? or Villa of Diomedes ?. June 2024.
Detail
from mosaic of “doors”, showing trident. Photo
courtesy of Giuseppe Ciaramella.
On display in Naples Archaeological Museum, Room CXXXIV.

VI 17.10 Pompeii ? or Villa of Diomedes ?. June 2024.
Detail
from mosaic of “doors”, showing an anchor.
Photo courtesy of Giuseppe
Ciaramella.
On display in Naples Archaeological Museum, Room CXXXIV.

VI 17.10 Pompeii (?) or Villa of Diomedes (?). July 2019.
Detail from centre of mosaic flooring. On display in Naples Archaeological Museum.
Photo courtesy of Giuseppe Ciaramella

VI 17.10 Pompeii ?.
Drawing of mosaic floor, from Pompeii, may be from this house, or from Villa of
Diomedes, or perhaps another.
See Abbate, G., 1859. Raccolta de' più belli ed
interessanti dipinti, musaici ed altri monumenti rinvenuti negli scavi di
Ercolano, di Pompei e di Stabia, che ammiransi nel Museo reale borbonico,
Tav. 96.

VI 17.10 Pompeii ?.
Drawing of mosaic border/edge of floor, from Pompeii, may be from this house,
or from Villa of Diomedes.
See Abbate, G., 1859. Raccolta de' più belli ed
interessanti dipinti, musaici ed altri monumenti rinvenuti negli scavi di
Ercolano, di Pompei e di Stabia, che ammiransi nel Museo reale borbonico,
Tav. 97.

VVI.17.9-10 Pompeii. May 2010. Wall painting found 12th November 1763 (from room 8, according to La Vega plan)
Now in Naples Archaeological Museum. Inventory number 8604.

VI.17.9-10 Pompeii. May 2010.
Wall painting found 12th November 1763 (from room 8, according to La Vega plan)
Now in Naples Archaeological Museum. Inventory number 1172.

VI.17.9-10 Pompeii. Found 18 November 1763. Sphynx. (Found in room 9, according to plan by La Vega).
Now in Naples Archaeological Museum. Inventory number 8817.

VI.17.9-10 Pompeii. Found 18 November 1763. Griffin.
Now in Naples Archaeological Museum. Inventory number 8691.
According to Allroggen-Bedel, this was found in La Vega’s room 9.
Room 9 (as described by La Vega), the zoccolo was clear yellow, with panels of purple.
The main part of the wall had a purple background which had yellow bands, and a frieze with yellow background with the tan-coloured panels.
The decoration above was on a white background with various ornamentations.
In the same room on 18th November, a winged Griffin and a winged Sphinx were cut, both had a purple background.

VI.17.9-10 Pompeii. Sacred Landscape, fresco 30cm x 30cm.
Now in Naples Archaeological Museum. Inventory number 9512.
According to Ciardiello – “This sacred landscape depicted a sacred door in the middle, a sacred tree, and a statue of a cylindrical base.
On the right are two sacred buildings. The landscape with a donkey and a Priapus (NAP 9476) came from the same wall.”
See Grimaldi, M. (ed). 2021. The Painters of Pompeii. MondoMostre, Rome, (p.157, no.73).
According to Allroggen-Bedel, this painting was found in room 11 on the La Vega’s plan.
She wrote that - “in room 11, a total of 6 pictures were cut.
5 of them can be identified with those in the Naples Museum, the first 2 paintings are on a yellow background and numbered 9476 and 9512.
The two vistas, 9476 and 9512, probably come (like their counterparts which were not cut) from the side panels.”
See
Allroggen-Bedel A., Die malereien aus dem Haus Insula Occidentalis 10,
(p.177-8). in Cronache Pompeiane II, 1976 (p.144-183).

VI.17.9-10 Pompeii. Wall painting of the liberation of Andromeda, found 3rd December 1763.
She is still chained to the rock whilst Perseus battles the sea monster close to the shore.
Now in Naples Archaeological Museum. Inventory number 9477.
According to PAH,
5 more paintings were found, from the vicinity of the Herculaneum Gate, amongst which was -
Andromeda su uno
scoglio, Nap 9477.
See PAH 1,1, p154.
See Helbig, W., 1868. Wandgemälde der vom Vesuv verschütteten Städte Campaniens. Leipzig: Breitkopf und Härtel. (1184)
See Le Pitture Antiche d’Ercolano, Tome IV,
Naples (1765), pl.61, p.307-9.
According to Allroggen-Bedel, this painting was found in room 11 on the La Vega’s plan.
See
Allroggen-Bedel A. Die malereien aus dem
Haus Insula Occidentalis 10, (p.177-178).

Now in Naples
Archaeological Museum. Inventory number 9477. Photo courtesy
of Giuseppe Ciaramella

VI.17.9-10 Pompeii. 1765 drawing of painting of Andromeda on a rock being rescued by Perseus.
See Le Pitture Antiche d’Ercolano, Tome IV,
Naples, 1765, pl.61, p.307-9.

VI.17.9-10 Pompeii. May 2010. Wall painting showing Phrixus riding on the ram, Helle sinking in the sea.
Now in Naples Archaeological Museum. Inventory number 9478.
According to Allroggen-Bedel, this painting was found in room 11 on the La Vega’s plan.
She wrote that - “in room 11, a total of 6 pictures were cut.
5 of them can be identified with those in the Naples Museum, regarding the sixth one, Alcubierre had described it as a mask – not well preserved, perhaps it was not cut out, contrary to the statement by La Vega.
The first 2 paintings are on a yellow background and numbered 9476 and 9512.
The three following paintings are mythological landscapes, numbered 9504, 9477, and 9478.
All 3 paintings are red brown-framed and come from yellow walls, they must have formed the central motif of the front wall and both side walls.
Shown is a landscape with shepherd’s and animals, possibly Paris on the Ida (9504).
Andromeda chained to a rock and being freed by Perseus (9477).
Phryxus riding on the ram, Helle sinking in the sea (9478).
The two vistas, 9476 and 9512, probably come (like their counterparts which were not cut) from the side panels.”
See
Allroggen-Bedel - Die malereien aus dem
Haus Insula Occidentalis 10, (p.177-8). in Cronache Pompeiane II, 1976
(p.144-183)

VI.17.9-10 Pompeii, or Herculaneum? Wall painting found 3rd December 1763.
Hesione, daughter of Laomedon, is freed by Hercules.
She had been left on the beach at Troy, which was being menaced by a sea monster.
Now in Naples Archaeological Museum. Inventory number 9445.
See Helbig, W., 1868. Wandgemälde der vom Vesuv verschütteten
Städte Campaniens.
Leipzig: Breitkopf und Härtel. (1129)
See Le Pitture Antiche d’Ercolano, Tome IV,
Naples (1765), pl.62, p.311-313.

VI.17.9-10 Pompeii. Drawing of a painting of Hercules and
Hesione. (9445)
See Le Pitture Antiche d’Ercolano, Tome IV,
Naples (1765), pl.62, p.311-313.

VI.17.9-10 Pompeii or Herculaneum? Drawing of a painting of Daedalus and Icarus (9506).
See Le Pitture Antiche d’Ercolano, Tome IV,
Naples (1765), pl.63, p.315-7.
According to Peters
“Three small landscapes featuring Perseus and Andromeda, Heracles and Hesione and Daedalus and Icarus, have probably come from the surroundings of the Herculaneum Gate. (See Fiorelli, PAH,1,1,154).
The exact place of origin is not known, but the similarity in size, colours and further rendering, make it seem probable that they have formed part of the decoration of the same room.
The paintings are all somewhat eroded but have been fairly well preserved.
The reproductions of the Pitture di Ercolano are reliable as far as the broad outlines are concerned, but not with respect to the execution of the various landscape elements. The chief colours of all three paintings are shades of grey, blue and green……
Both the size and composition of “Perseus and Andromeda” make it seem likely that the original site of this picture was on the main wall.”
See Peters, W.J.T. (1963): Landscape in Romano-Campanian Mural Paintings. The Netherlands, Van Gorcum & Co., (p.129-131).
See Dawson, C.M. (1944): Romano-Campanian Mythological Landscape Painting. Yale Univ. Press, Yale Classical Studies, vol. IX. (p.107-108)
With regard to the above list from Peters, Allroggen-Bedel says that the Freeing of Hesione (9445, 28th January 1764) and Daedalus and Icarus (9506, 4th February 1764), both came from Herculaneum and were both from a blue wall.”
See
Allroggen-Bedel - Die malereien aus dem
Haus Insula Occidentalis 10, (p.178). in Cronache Pompeiane II, 1976
(p.144-183)

VI.17.9-11 Pompeii. 1978.
Painting of bird standing on a trellis in a painted garden. Photo by Stanley A. Jashemski.
Source: The Wilhelmina and Stanley A. Jashemski archive in the University of Maryland Library, Special Collections (See collection page) and made available under the Creative Commons Attribution-Non-Commercial License v.4. See Licence and use details.
J78f0367
Now in Naples Archaeological Museum, inventory number 9719.
According to Pagano and Prisciandaro, this was found on 30th June 1764 together with NAP 8760.
Also found in the same room may have been NAP 8741, 8723, 9705, 9822, and 8785.
See Pagano, M. and Prisciandaro, R., 2006. Studio sulle provenienze degli oggetti rinvenuti negli scavi borbonici del regno di Napoli. Naples: Nicola Longobardi, (p.46-7).

VI.17.9-11 Pompeii. Found 30th June 1764. 1966. Bird with flowers and plants. Photo by Stanley A. Jashemski.
Now in Naples Archaeological Museum. Inventory number 8723.
Source: The Wilhelmina and Stanley A. Jashemski archive in the University of Maryland Library, Special Collections (See collection page) and made available under the Creative Commons Attribution-Non-Commercial License v.4. See Licence and use details.
J66f0794

VI.17.9-11 Pompeii. Found 30th June 1764. 1966. Bird with flowers and plants. Photo by Stanley A. Jashemski.
Now in Naples Archaeological Museum. Inventory number 8723.
Source: The Wilhelmina and Stanley A. Jashemski archive in the University of Maryland Library, Special Collections (See collection page) and made available under the Creative Commons Attribution-Non-Commercial License v.4. See Licence and use details.
J66f0795

VI.17.9-11 Pompeii. Found 30th June 1764. 1966.
Detail of bird with flowers and plants. Photo by Stanley A. Jashemski.
Now in Naples Archaeological Museum. Inventory number 8723.
Source: The Wilhelmina and Stanley A. Jashemski archive in the University of Maryland Library, Special Collections (See collection page) and made available under the Creative Commons Attribution-Non-Commercial License v.4. See Licence and use details.
J66f0796

VI.17.9-11 Pompeii. 1964. Painting of bird standing on balustrade ready to drink from fountain. Photo by Stanley A. Jashemski.
Source: The Wilhelmina and Stanley A. Jashemski archive in the University of Maryland Library, Special Collections (See collection page) and made available under the Creative Commons Attribution-Non-Commercial License v.4. See Licence and use details.
J64f1048
Now in Naples Archaeological Museum, inventory number 9705.
According to Pagano and Prisciandaro, this may have been found in the same room as other paintings on 30th June 1764.
See Pagano, M. and Prisciandaro, R., 2006. Studio sulle provenienze degli oggetti rinvenuti negli scavi borbonici del regno di Napoli. Naples: Nicola Longobardi, (p.46-7).

VI.17.9-11 Pompeii. 1957.
Painting of bird standing on balustrade ready to drink from fountain. Photo by Stanley A. Jashemski.
Source: The Wilhelmina and Stanley A. Jashemski archive in the University of Maryland Library, Special Collections (See collection page) and made available under the Creative Commons Attribution-Non-Commercial License v.4. See Licence and use details.
J57f0501
Now in Naples Archaeological Museum, inventory number 9705.
According to Pagano and Prisciandaro, this may have been found in the same room as other paintings on 30th June 1764.
See Pagano, M. and Prisciandaro, R., 2006. Studio sulle provenienze degli oggetti rinvenuti negli scavi borbonici del regno di Napoli. Naples: Nicola Longobardi, (p.46-7).
This was found on the same wall as inventory number 8762.
See Borriello M.
R., Sampaolo V., et al, 1986. Le Collezioni del Museo Nazionale di Napoli.
Roma: De Luca Editore, p. 142-3, n. 131.

VI.17.9-11 Pompeii. Fragment of a garden painting of a bird on a balustrade. 1968. Photo by Stanley A. Jashemski.
Source: The Wilhelmina and Stanley A. Jashemski archive in the University of Maryland Library, Special Collections (See collection page) and made available under the Creative Commons Attribution-Non Commercial License v.4. See Licence and use details.
J68f0785
Now in Naples Archaeological Museum. Inventory number 8762.
"From Pompeii" the same wall as inventory number 9705.
See Borriello M.
R., Sampaolo V., et al, 1986. Le Collezioni del Museo Nazionale di Napoli.
Roma: De Luca Editore, p. 142-3, n. 133.

VI.17.9-11 Pompeii. Detail from late 19th century photograph.
Now in Naples Archaeological Museum. Inventory number 9822.
1777-1778
Extracts (translation) from PAH, 1, 1, 298-9, and addendum p.162:
1st November 1777 – House opposite to that “of the Surgeon”.
14th February 1778 – They must be those uncovered in 1763.
21st March 1778 – These are the same, which were excavated and then re-covered in 1763.
27th June 1778 – It seems that this is the house opposite to that called “of the Surgeon”.

VI.17.10 Pompeii. Fragments of wall decoration.
See Antichità di Ercolano: Tomo Setto: Le
Pitture 5, 1779, p. 317-8, table LXXI.
“The Royal Museum had few other paintings that could compare in taste, in charm, and finishing with this fragment that was found in Cività.
The background of the strip above was red, the garland was green, interwoven with white flowers, and yellow and red fruit; the two masks have the flesh-coloured face, blond hair, white wings; the larger mask was whitish with yellow horns; and the band, which closes this strip, also was also red with white lines.
The other strip that followed, had a red background also: the bell jars are yellow: the colour of the other vases, which are of a clearer yellow, was green; all the ornaments, or scrolls, and the flowers are white; the band was green with white lines.
The background of the strip, which was below, was black; the background of ornaments or shields was red; the bacchettine, turning and dividing, were white, with white and yellow flowers, and also yellow fruit; and the garlands were green; the masks had flesh-coloured faces, white beards, their heads adorned with green branches and white flowers. The Pan was charming, playing the pan-pipes, crowned with pine, and placed upon a white cloth. The two beautiful figures were delicately painted and expressed with great vividness, crowned by green branches with white flowers, the woman was half covered with a lacquer-coloured cloth, while the Faun, recognized by the goat’s ears, with a light green coloured cloth.”
See 14.8.1778 and list of 104 pieces of plaster, PAH 1, 1, 298, addendum 162.
Addendum 162 – House opposite to that of the Surgeon, painted plaster that decorated an underground room.
(Note: This house should be either VI.17.10 or even VI.17.13).
8th August 1778 – we continue to work around the site where the pieces of mosaic flooring were found, and we discovered the underground areas, almost all ruined.
Addendum 8th August – ruined underground in the said house, along the principal road of Pompeii, on the right going into the city.
14th August 1778 - we continued to dig in the underground area, already mentioned in the past report, where amongst the ruins of walls were found -
- a bronze coin covered in rust,
- 104 pieces of painted plaster, of varying sizes.
Some of these were part of a frieze of a room, that with a black background were figures, arabesques, a ribbon composed of a decoration nearly of a shape of a vase, and many other things.
Others include a decoration similar to a pilaster, that in the middle has a straight garland with fluttering cloth that partly goes around it, and are suspended from some twigs, from the garland itself arise some game, some deer/hinds, some flowers, and a circle with figurine, which adorns this decoration, which has a white background, and narrows on one side by a red background, and on the other with a black background.
Other pieces have a red background, and others black, all with various arabesques, that it would be difficult to describe by the amount of things that they contain, that by not being able to form a fair idea, lacking the pieces that do not combine well with other parts: all however are painted with some taste and finish.
These pieces of plaster include many similar things to those of pieces that were found in the same place from 13th February to 3rd March 1764, and all would have had to belong to the same room.
Addendum 14th August - painted plaster, that decorated a room of this underground.

VI.17.10 Pompeii. Drawing of Fragments of wall decoration.

VI.17.9-10 Pompeii. Pastiche of fragments of wall painting found 14th August 1778, “from the underground area”.
Now in Naples Archaeological Museum. Inventory number 9920.
According to Aoyagi, etc:
Stringent similarities also appear with numerous fragments unearthed in the Insula Occidentalis, between 1764 and 1778, assembled in the 18th century in several panels, some of which are published as a vignette in the 4th and the 7th volume of the Antiquities of Herculaneum similar in sophistication and wealth of detail in the decoration in III style of the House of the Golden Bracelet.
(Note 55): Sampaolo, 1998, p.276. no.21 hypothesises that the fragments could have been found in House VI.17.13 since the excavation diaries refer to houses situated inside the Herculaneum Gate (Fiorelli, PAH, 1860, vol. 1, p. 155 and p. 298-99).
However, the possibility should not be ruled out, that they could have been found from the House of the Golden Bracelet because the area of VI.17.41, VI.17.42 and VII.16.22, was already the object of Bourbon explorations from 1750.
See Aoyagi M. and Pappalardo U., 2006. Pompei (Regiones VI-VII) Insula Occidentalis. Napoli: Valtrend. (p.223, and note 55).

VI.17.9-10 Pompeii. Pastiche of fragments of wall painting found 14th August 1778, “from the underground area”.
Now in Naples Archaeological Museum. Inventory number 9916.

VI.17.9-10 Pompeii. Pastiche of fragments of wall painting found 14th August 1778, “from the underground area”.
Now in Naples Archaeological Museum. Inventory number 9907.
(Note: however in Helbig (numbers 1159 and 1402), he described it as from Pompeii, Farm/land di Irace, presumably from the south side of Via Consolare, the question being was VI.17.9-11 under the property of Irace, or was it under the property of Cuomo?).
14th July 1764, PAH I, 1, 157:
We continue to excavate in the house mentioned in the last report, where we have found two portions of painted plaster that decorated the same wall of a room.
The first: the zoccolo that was on all of the wall had a black background, in the middle was shown a woman with mantle and crown of flowers on her head, she held a thyrsus in her left hand and a disc/circle in her right hand, below her was a painted panel of a small landscape. Above this decoration was a painting (that had been transported from another place by the ancients, and which had only recently been stuck to the plaster) in which various figures were seen. (Helbig 1402, Ornati I, tav.21 or tav.30).

VI.17.9/11, or
Irace at VI.17.00. Painting of family greeting a winning hero
followed by several warriors.
See Gli ornati delle pareti ed i pavimenti delle
stanze dell'antica Pompei incisi in rame: 1796, tav. 21.
See Gli ornati delle pareti ed i pavimenti delle
stanze dell'antica Pompei incisi in rame: 1838, tav. 30.
Described as -
Pl.30 “Famiglia che si
prostra ad un eroe vincitore seguito da diversi guerrieri: parete incisa dal
Cepparoli”.
(Family greeting a winning hero followed by several warriors: wall
incised by Cepparoli.)

VI.17.9/11, or
Irace at VI.17.00. Pre-1843. Drawing by Abbate of wall, as
above.
See Raccolta de più
interessante Dipinture e di più belle Musaici rinvenuti negli Scavi di
Ercolano, di Pompei, e di Stabia. 1843. Napoli.

VI.17.9/11, or
Irace at VI.17.00. Pre-1838. Drawing by Abbate of detail of
central painting, as above.
See Gli ornati delle pareti ed i pavimenti delle
stanze dell'antica Pompei incisi in rame: 1838, pl. 30 detail.
The second (see, Note 226, below): also on a black zoccolo like the other painting, in the middle of which was woman with butterfly wings in the act of flying, totally clothed other than her arms, with a crown on her head and pendants in her ears, carrying in her right hand a basket of flowers and a branch in her left hand. The said woman rested inside a doorway, which was surrounded by two thyrsi and various branches. Remaining above the zoccolo, we see, as in the other on a red background, two pedestals at the extremities, both of which hold a portion of column between which, above the zoccolo, stood a vase. (NAP 8600, AdE VII, 16, 75).
(Note: 226 – Masseria Irace, 14 July 1764 – This wall with described painting was reported in a volume of Ornati delle pareti e pavimenti, published in 1808.
PAH I, addendum 149).

VI.17.9/11, or
Irace at VI.17.00. Same as other drawings below.
See Duban F. Album
de dessins d'architecture effectués par Félix Duban pendant son pensionnat à la
Villa Medicis, entre 1823 et 1828: Tome 2, Pompéi, pl. 109.
INHA Identifiant numérique NUM PC 40425 (2)
https://bibliotheque-numerique.inha.fr/idurl/1/7157
« Licence Ouverte / Open Licence » Etalab

VI.17.9/11, or Irace at VI.17.00. As below and above.
See Antichità di Ercolano: Tomo
Setto: Le Pitture 5, 1779, Tav. 16, p. 75.

VI.17.9/11, or
Irace at VI.17.00. Same as below by Poirot. (Candelabra added
to above drawing)
See Raccolta de più
interessante Dipinture e di più belle Musaici rinvenuti negli Scavi di
Ercolano, di Pompei, e di Stabia. 1843. Napoli.

VI.17.9/11,
or Irace at VI.17.00. 1826
drawing by P-A Poirot.
See Poirot, P. A., 1826. Carnets de dessins de Pierre-Achille Poirot. Tome 2 : Pompeia, pl. 79.
See Book
on INHA Document placé sous « Licence Ouverte / Open Licence » Etalab
21st July 1764, PAH I, 1, 158:
In the same house we have found a plaster in the same disposition to the other already described in the report of 14th July, with a picture in the middle of the zoccolo, which shows a woman, crowned with flowers and holding a bucket and a basket of flowers. (NAP 8514, ADE VII, 79, 353).
Above the zoccolo, amongst columns, we see a beautiful painting that contains 9 figures, which we could see, similarly, to have been brought from another place. (Helbig 1159, Ornati I, 1796, pl. 20)

VI.17.9/11, or
Irace at VI.17.00. 1796 painting by Vanni described as Admetus
and Alcestis or Iphigenia in Tauris.
See Gli ornati delle pareti ed i pavimenti delle
stanze dell'antica Pompei incisi in rame: 1796, pl. 20.
In Ornati, 1838, pl.
29, it was described as “Ifigenia in Tauride”, Quadro pregevolissimo pel
soggetto eper la composizione: parete incisa dal Campana.”
See Gli ornati delle pareti ed i pavimenti delle
stanze dell'antica Pompei incisi in rame: 1838, pl. 30.
According to Grimaldi – this painting was from Masseria Irace,
VII.6, a painting of Admetus and Alcestis
Now in Naples Archaeological Museum, inventory number SN 16.
See Grimaldi, M. (ed): The Painters of Pompeii,
MondoMostre, Rome, (p.114/115, no.24).
28th July 1764, PAH I, 1, 158:
In the aforementioned podere of D. Giacomo Irace, we have found two black zoccolo, in line with the past reports of the 14th of July.
One, with decoration similar to the second zoccolo mentioned in the report of 14th July. In the middle was a flying figure, who carried a stick in the left hand, and some flowers in the right hand. (NAP 8514, 8516, ADE VII, 79, 353, Ornati I, 1796, pl. 21.)

VI.17.9-11 Pompeii or Via Consolare. One zoccolo at the top, and the second below. ADE VII, 79, 353.
28th July 1764, PAH I, 1, 158 (cont’d from above):
The other, not different to the other, other than the figure in the middle which was a of a nude woman carrying flowers in her hands. (NAP 9318).
Above the first zoccolo, the plaster was very faded and we were only able to distinguish a winged celebrity on a red background. (NAP 8951).
Above the second zoccolo the plaster was also nearly all ruined, nothing remained other than the head of a man with a garland of flowers, on an equally red background. (NAP 9846).
According to ADE, VII, LXXIX (79), p.351-2:
“This painting, on a black background, was of a supreme delicacy, and finish. In the upper panel the frame was white; the band under the frame was yellow; and the shield was green, from which the branches come out, which were also green with white flowers; and the birds were red.
The band, which comes next, was red with white stripes.
The niche outside, and the dolphins, and the other ornaments above, are yellow; the tholos and the dome inside were green; and green again were the garlands/festoons; the side rods were yellow, with green foliage, and with white florets; the base of the niche was red.
The Cupid had green wings, blonde hair; the cloth hanging from his arm was red; the fronds with which he was crowned seem to be of pine; and he held the pedum in one hand, and the panpipes in the other."
(Questa
pittura, in campo nero, era di una somma delicatezza, e finitura. Nel riquadro
superiore la cornice era bianca; la fascia sotto la cornice era gialla; e verde
era lo scudetto, ond’escono i ramuscelli, i quali son verdi anch’essi co’fiori
bianchi; e gli uccelli son rossi.
La fascia, che
vien dopo, era rossa con liste bianche.
La nicchia al
di fuori, e i delfini, e gli altri ornati al di sopra, son gialli; il tolo, o
sia la cupoletta al di dentro era verde; e verdi ancora sono i festoncini; le
bacchette laterali son gialle, con fogliamo verdi, e con fioretti bianchi; il
zoccolo della nicchia era rosso.
L’Amorino ha
l’ali verdine, i capelli biondi; il panno sospeso al braccio era di color
rosso; le frondi di cui era coronato sembran di pino; e tiene il pedo in una
mano, e la siringa nell’altro.)
“The painting below was in all respects similar to the one above.
The Psyche in the niche, which is recognized by the usual butterfly wings, had blonde hair encircled with fronds and flowers; had green clothing; and held a garland/festoon of fronds and flowers in the right hand, and in the left hand, a thyrsus intertwined with ribbons, and flowers.”
(Il riquadro
di sotto era in tutto simile a quel di sopra.
La Psiche
nella nicchia, che si riconosce alle solite ali di farfalla, ha i capelli
biondi cinti di frondi, e fiori; ha il panno di color verde; e tiene colla
destra un festoncino di frondi, e fiori, e nella sinistra un tirso intrecciato
con nastri, e fiori.)

VI.17.9-11 Pompeii or Via Consolare. Painting with tholos, dolphins and winged cupid with a pedum.
Now in Naples Archaeological Museum. Inventory number 8516.

VI.17.9-11 Pompeii. Pre-1843. Drawing of several wall decorations
by Abbate.
These may or may not be from this house but look very similar.
See Raccolta de più
interessante Dipinture e di più belle Musaici rinvenuti negli Scavi di
Ercolano, di Pompei, e di Stabia. 1843. Napoli.
According to Guidobaldi and Esposito -
“The drawing of the “candelabra” on the left, is from the Villa of
the Royal Stables at Portici.”
Original now in Naples Archaeological Museum, inventory number:
9762.
See Guidobaldi, M.P. and Esposito, D. (2013). Herculaneum, Art of a Buried City. Abbeville Press, New York, (p. 124).
(This has also been copied to VI.17.00, and to Via Consolare.)
For details of excavation from Fiorelli G., 1860. Pompeianarum antiquitatum historia, Vol.
1: 1748 - 1818, Naples, 1,1,
see page at VI.17.25, parts 2 and 3.