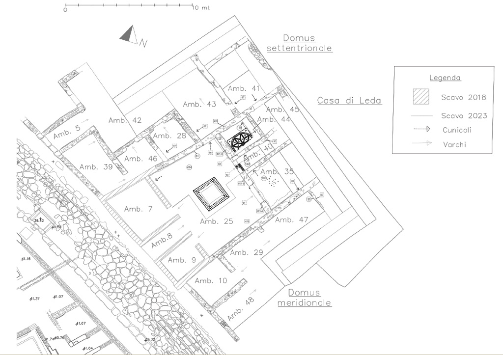
In 2018-2019 to improve the drainage and security for visitors to the site, the soil, ash and exuberant vegetation was removed from the slope of the unexcavated land on the east side of Via del Vesuvio (Insula V.6).
Twenty new rooms have been identified of the various building units thus identified, referable to at least four houses, indicated by the passages of the entrances that opened in the walls facing the street (Fig. 4).
See Osanna M., 2019. Pompei. Il tempo
ritrovato. Le nuove scoperte. Milano: Rizzoli, p. 216-7, fig. 4.
The entrance numbers may eventually change as a result.
Further excavations were then carried out in 2018 and 2023-4.
This has cleared the area to enable the street boundary wall and rooms at its immediate rear to be viewed from Via del Vesuvio.
Previously only the western street front had been excavated, c.1902, 1905-8.
Our house numbers are based on the plan as Eschebach drew it in 1969.
Until this area is fully excavated, this may or may not be the correct number of entrances.
As excavations proceed the houses may receive different numbers.
The house on the south side of the House
of Leda includes the fauces/entrance corridor, one of the side bedrooms and
part of the atrium, but excavation operations are still ongoing in this sector.
See http://pompeiisites.org/bolletino-degli-scavi-di-pompei/casa-di-leda
La casa
meridionale della Casa di Leda comprende le fauces, uno dei cubicoli laterali e
parte dell’atrio, ma in questo settore le operazioni di scavo sono ancora in
corso.
Vedi http://pompeiisites.org/bolletino-degli-scavi-di-pompei/casa-di-leda

V.6.11 Pompei.
Piano. La casa sul lato sud della Casa di Leda comprende l'Amb. 48, l'Amb. 10,
l'Amb. 29 e l'Amb. 47.
La casa
comprende le fauces, uno dei cubicoli laterali e parte dell’atrio, ma in questo
settore le operazioni di scavo sono ancora in corso. L’atrio era dotato di una
scala di cui resta il tracciato in negativo. In prossimità della scala è
visibile un larario con mensola in marmo. Tra le decorazioni in IV Stile che
rivestono le pareti di fondo spicca il quadro mitologico raffigurante Frisso ed
Elle in fuga sull’ariete del Vello d’Oro.
V.6.11 Pompeii. Plan. The house on the
south side of the House of Leda includes Amb. 48, Amb. 10, Amb. 29 and Amb. 47.
The house includes the fauces, one of the side cubicula and part of the
atrium, but excavation operations are still underway in this sector. The atrium was equipped
with a staircase of which the negative trace remains. Near the staircase, a
lararium with a marble shelf is visible. Among the IV Style decorations that cover
the back walls, the mythological painting depicting Phrixus and Helle fleeing
on the ram of the Golden Fleece stands out.
Photograph ©
Parco Archeologico di Pompei.

V.6.11 Pompeii, on right. October 2022.
Looking north-east along Via del Vesuvio, with narrow entrance doorway to fauces 48, on right and the front wall of cubiculum 10 to its left.
Photo courtesy of Klaus Heese.

V.6.11 Pompeii. May 2024.
Looking north towards east side of Via del Vesuvio, with entrance doorway with wooden steps, in centre. Photo courtesy of Klaus Heese.

V.6.11 Pompeii, on right. May 2024. Looking east from Via del Vesuvio towards Room 10, on right.
The cubiculum, room 9 in the House of Leda, can be seen on the left. Photo courtesy of Klaus Heese.

V.6.11 Pompeii. October 2024.
Looking south-east across cubiculum 10, through doorway, with doorway to another room, at rear.
Photo courtesy of Klaus Heese.

V.6.11 Pompeii. October 2024. Room 10, looking towards east wall. Photo courtesy of Klaus Heese.


V.6.11 Pompeii. October 2024.
Room 10, east wall, detail of painted flying figure. Photo courtesy of Klaus Heese.

V.6.11 Pompeii. October 2024. Room 10, detail from lower east wall. Photo courtesy of Klaus Heese.

V.6.11 Pompeii. May 2024. Room 10, detail of painted decoration on east wall. Photo courtesy of Klaus Heese.

V.6.11 Pompeii. October 2024. Room 10, looking towards south wall. Photo courtesy of Klaus Heese.
![V.6.11 Pompeii. March 2024. Rooms 29 and 47. Atrium.
Già durante le operazioni di profilatura della scarpata meridionale dello scavo sono emersi i primi elementi di quelli che ora vengono riconosciuti come ambienti di una nuova domus (Fig. 1). Lo scavo del 2018 aveva già parzialmente messo in luce il limite Nord delle fauces (Amb. 48) e uno dei cubicula laterali (Amb. 10). Nel corso della nuova campagna [2023] inizia a profilarsi l’atrio (Fig. 8), della nuova abitazione. E sulla parete Nord, cioè quella che divide la casa da quella di Leda, si conservano nell’intonaco, privo di decorazione pittorica, il negativo di una scala e una nicchia con mensola di marmo. Proseguendo verso Est lungo il medesimo setto murario risultano subito evidenti le differenze nelle decorazioni degli intonaci. Si nota inoltre un netto cambiamento proprio in corrispondenza del pilastro USM 112, a partire dal quale termina l’intonaco a sfondo neutro e sono visibili invece decorazioni in IV Stile. A ridosso dell’angolo in cui il muro che chiude ad Est Amb. 29 intercetta la sponda di scavo è emerso un quadro a soggetto mitologico raffigurante Frisso ed Elle in fuga (Figg. 9, 10).
Already during the profiling of the southern slope of the excavation, the first elements of what are now recognised as rooms of a new domus emerged. The 2018 excavation had already partially revealed the northern limit of the fauces (Amb. 48) and one of the lateral cubicula (Amb. 10). In the course of the new campaign [2023], the atrium of the new dwelling began to emerge. And on the north wall, i.e. the one dividing the house from Leda's, the negative of a staircase and a niche with a marble shelf are preserved in the plaster, devoid of pictorial decoration. Continuing eastwards along the same wall, the differences in the plaster decorations are immediately evident. A clear change can also be seen at the pillar, where the neutral background plastering ends and IV Style decorations are visible instead. A painting with a mythological subject depicting Frisso and Elle in flight (Figs. 9, 10) emerged near the corner where the wall that closes Amb. 29 to the east intercepts the excavation bank.
See E-Journal 01: 01.03.24, Interventi conservativi e nuovi scavi nella Casa di Leda. Dalla tutela alla conoscenza di un’abitazione del ceto medio di Pompei, Fig. 8.
Photograph © Parco Archeologico di Pompei.](5%2006%2011_files/image013.jpg)
V.6.11 Pompeii.
March 2024. Rooms 29 and 47. Atrium.
Già durante le operazioni di profilatura della
scarpata meridionale dello scavo sono emersi i primi elementi di quelli che ora
vengono riconosciuti come ambienti di una nuova domus (Fig. 1). Lo scavo del
2018 aveva già parzialmente messo in luce il limite Nord delle fauces (Amb. 48)
e uno dei cubicula laterali (Amb. 10). Nel corso
della nuova campagna [2023] inizia a profilarsi l’atrio (Fig. 8), della nuova
abitazione. E sulla parete Nord, cioè quella che divide la casa da quella di
Leda, si conservano nell’intonaco, privo di decorazione pittorica, il negativo
di una scala e una nicchia con mensola di marmo. Proseguendo verso Est lungo il
medesimo setto murario risultano subito evidenti le differenze nelle
decorazioni degli intonaci. Si nota inoltre un netto cambiamento proprio in
corrispondenza del pilastro USM 112, a partire dal quale termina l’intonaco a
sfondo neutro e sono visibili invece decorazioni in IV Stile. A ridosso
dell’angolo in cui il muro che chiude ad Est Amb. 29 intercetta la sponda di
scavo è emerso un quadro a soggetto mitologico raffigurante Frisso ed Elle in
fuga (Figg. 9, 10).
Already during the profiling of the southern slope of the excavation, the first elements of what are now recognised as rooms of a new domus emerged. The 2018 excavation had already partially revealed the northern limit of the fauces (Amb. 48) and one of the lateral cubicula (Amb. 10). In the course of the new campaign [2023], the atrium of the new dwelling began to emerge. And on the north wall, i.e. the one dividing the house from Leda's, the negative of a staircase and a niche with a marble shelf are preserved in the plaster, devoid of pictorial decoration. Continuing eastwards along the same wall, the differences in the plaster decorations are immediately evident. A clear change can also be seen at the pillar, where the neutral background plastering ends and IV Style decorations are visible instead. A painting with a mythological subject depicting Frisso and Elle in flight (Figs. 9, 10) emerged near the corner where the wall that closes Amb. 29 to the east intercepts the excavation bank.
See E-Journal 01: 01.03.24, Interventi
conservativi e nuovi scavi nella Casa di Leda. Dalla tutela alla conoscenza di
un’abitazione del ceto medio di Pompei, Fig. 8.
Photograph © Parco Archeologico di Pompei.

V.6.11 Pompeii. March 2024. Rooms 29 and 47.
A ridosso dell’angolo in cui il muro che chiude ad Est Amb. 29 intercetta
la sponda di scavo è emerso un quadro a soggetto mitologico raffigurante Frisso
ed Elle in fuga.
A painting with a mythological subject depicting Frisso and Elle in flight (Figs. 9, 10) emerged near the corner where the wall that closes Amb. 29 to the east intercepts the excavation bank.
Photograph
© Parco Archeologico di Pompei.
See
E-Journal 01: 01.03.24, Interventi conservativi e nuovi scavi nella Casa di
Leda. Dalla tutela alla conoscenza di un’abitazione del ceto medio di Pompei,
Fig. 9.

V.6.11 Pompeii. March 2024. Ambienti 29 and 47.
Frisso è in sella al Vello d’Oro, mentre Elle
viene rappresentata nell’atto di sporgere il braccio fuori dall’acqua per
afferrare l’appiglio offertole dal fratello.
Phrixus is riding the Golden Fleece, while Helle is depicted in the act of sticking her arm out of the water to grab the handhold offered to her by her brother.
Photograph © Parco Archeologico di Pompei.
See E-Journal 01: 01.03.24, Interventi
conservativi e nuovi scavi nella Casa di Leda. Dalla tutela alla conoscenza di
un’abitazione del ceto medio di Pompei, Fig. 10.

V.6.11 Pompei (part), on left, V.6.10, V.6.9, on right, Pompeii. October 2022.
Looking towards front façade on east side of Via del Vesuvio. Photo courtesy of Klaus Heese.

V.6.11 Pompeii. December 2005. Entrance doorway.

V.6.11 Pompeii. May 2006. Entrance doorway.

V.6.12, on left. December 2005. Front façade, with doorway to V.6.11, on right.