We have constructed this page from press material and photos produced by the Parco Archeologico di Pompei.
Our grateful thanks to the Parco Archeologico di Pompei for giving us permission to use their press releases and photos.
Abbiamo costruito
questa pagina da materiale stampa e foto prodotte dal Parco Archeologico di
Pompei.
Ringraziamo il Parco
Archeologico di Pompei per averci dato il permesso di utilizzare i loro
comunicati stampa e le loro foto.
Excavations continue in the Regio V, at the domus del Larario, partially excavated already in 2018 as part of the Great Pompeii Project and where rooms furnished with furniture and multiple furnishings have recently been discovered, for which plaster casts have been made. Among the furniture returned with the casts technique there are beds, a table and a trunk left open at the time of the eruption of 79 AD.
The new excavations, essential to a future project of restoration and use of the complex discovered in 2018, also involved two rooms north of the Casa del Larario, belonging to another house.
Continuano gli scavi
nella Regio V, presso la domus del Larario, scavata in parte già nel 2018
nell’ambito del Grande Progetto Pompei e dove di recente sono stati scoperti
ambienti arredati con mobilio e con molteplici suppellettili, per cui sono
stati effettuati calchi in gesso. Tra i mobili restituiti con la tecnica dei
calchi ci sono letti, un tavolo e un baule lasciato aperto nel momento
dell’eruzione del 79 d.C.
I nuovi scavi,
funzionali a un futuro progetto di restauro e fruizione del complesso scoperto
nel 2018, hanno interessato anche due ambienti a nord della Casa del Larario,
appartenenti a un’altra casa.
See http://pompeiisites.org/wp-content/uploads/domus-larario-letti.pdf

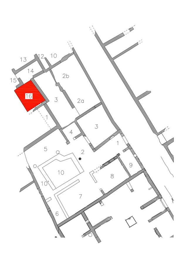
V.3.14 Pompeii. August 2022. Outline plan by Parco Archeologico di Pompeii showing the location of room 16.
According to the Parco Archeologico di Pompei press release, room 16
is part of a separate house to the north of the Casa del Larario.
Photograph © Parco
Archeologico di Pompei.
Room 16 is of particular interest, located in the south-east corner of an open area. The room, just under 13 square metres and with a sparse wall decoration (orthostats imitating marble crustae rendered only with black and red lines, on a red plinth), although it records at least two episodes of incursion post 79 AD, has preserved in the last metre of cinerite important information on the intended use of the room. The execution in several phases and at different times of the plaster casting technique made it possible to recover the entire furniture as well as part of the collapse of the false ceiling. The casts have produced the structures of two large beds enriched by the presence of decorated headboards.
Particolare interesse
riscuote l’Ambiente 16, ubicato nell’angolo sud-est di un’area aperta. Il vano,
di poco meno di 13 metri quadrati e con una scarna decorazione parietale
(ortostati imitanti crustae marmoree resi solo con
linee nere e rosse, su zoccolatura rossa), sebbene lasci registrare almeno due
episodi d’incursione post 79 d.C., ha custodito nell’ultimo metro di cinerite
informazioni importanti sulla destinazione d’uso dell’ambiente. L’esecuzione in
più fasi ed in tempi diversi della tecnica della colatura del gesso ha permesso
di recuperare l’intero arredamento nonché parte del crollo del controsoffitto.
I calchi hanno restituito i volumi di due letti, di grandi dimensioni ed
arricchiti dalla presenza di testate decorate.
V.3.14 Pompeii. August 2022. Detail plan by Parco Archeologico di Pompeii showing the position of the two beds in room 16.
According to the Parco Archeologico di Pompei press release, room 16 is part of a separate house to the north of the Casa del Larario.
Photograph ©
Parco Archeologico di Pompei.

V.3.14 Pompeii. March 2024.
Room 16, casts of bed 1, letto 1
on the plan, (the bed is a copy, while those of the wicker baskets and the sole
of the shoe are original.)
On display in
exhibition in Palaestra entitled:- “L’altra Pompei,
vite comuni all’ombra del Vesuvio”. Photo courtesy of Giuseppe Ciaramella.

On display in
exhibition in Palaestra entitled “L’altra Pompei, vite comuni all’ombra del
Vesuvio”. Photo courtesy of Giuseppe Ciaramella.

Room 16, casts of bed
2, letto 2 on the plan, and the furnishings (the bed
is a copy, while the sole of the shoe, lower left, is original.)
On display in
exhibition in Palaestra entitled “L’altra Pompei, vite comuni all’ombra del
Vesuvio”. Photo courtesy of Giuseppe Ciaramella.

V.3.14 Pompeii. March 2024. Room 16,
description card in exhibition entitled –
“L’altra
Pompei, vite comuni all’ombra del Vesuvio”. Photo courtesy of Giuseppe
Ciaramella.

V.3.14 Pompeii. August 2022. Image from above looking down into room 16 with the casts of the two beds and the false ceiling.
Immagine
dall’alto dell’ambiente 16 con i calchi dei due letti e del controsoffitto.
Photograph ©
Parco Archeologico di Pompei.
The first bed, of the "high back" type usually used in cubicula (De Carolis 2007, pp. 86-90) and placed at the north-east corner of the room, shows an important framework of wooden planks of approx. 2.20 x 1.20 m, and is just under 50 cm high. Orthogonally to the length, the traces of the thin wooden planking supported centrally by a structural board are evident. On them, and on the surviving cinerite, traces of the fabric, perhaps pertinent to the mattress, are still evident. At the foot of the bed, the messy shapes returned by the chalk allow you to read a probably hastily rolled up blanket. The south-west foot of the bed, of which a very simple moulding can be glimpsed, has revealed the presence of a wooden wedge, used to keep the bed from wobbling, given that it rests on a beaten earth floor that is not perfectly horizontal. As mentioned above, this bed is enriched by the presence, on the two walls on which it rests, of a headboard formed of thin wooden panels decorated with squares in relief.
Il primo
letto, del tipo “a spalliera alta” utilizzato solitamente nei cubicoli (De
Carolis 2007, pp. 86-90) e posto presso l’angolo nord-est del vano, mostra un
importante intelaiatura di assi lignei di ca. 2,20 x 1,20 m, ed è alto poco
meno di 50 cm. Ortogonalmente alla lunghezza si evidenziano le tracce del
sottile tavolato ligneo sostenuto centralmente da un’asse rompitratta. Su di
esse, e sulla cinerite superstite, sono ancora evidenti tracce del tessuto,
forse pertinente al materasso. Ai piedi del letto, le forme disordinate
restituite dal gesso permettono di leggere una probabile coperta
frettolosamente arrotolata. Il piede sud-ovest del letto, di cui si intravede
una modanatura molto semplice, ha restituito la presenza di una zeppa di legno,
utilizzata per non far barcollare il letto, considerato che poggia su un
pavimento in battuto e non perfettamente orizzontale. Come anticipato, questo
letto è arricchito dalla presenza, sulle due pareti su cui si addossa, di una
testata formata da sottili pannelli lignei decorati con quadroni a rilievo.

V.3.14 Pompeii. August 2022. Room 16. Letto 1.
Bed cast at the northeast corner of room 16. On the walls are casts and traces of the decorated wooden headboards.
Calco di letto
presso l’angolo nord-est del vano 16. Sulle pareti calchi e tracce delle
testate lignee decorate.
Photograph ©
Parco Archeologico di Pompei.

V.3.14 Pompeii. August 2022. Room 16. Letto 2.
Headboard with wooden panels decorated with relief squares, pertinent to the bed at the northwest corner.
Testata a
pannelli lignei decorati con quadroni a rilievo, pertinenti al letto presso
l’angolo nord-ovest.
Photograph ©
Parco Archeologico di Pompei.

V.3.14 Pompeii. August 2022. Room 16. Letto 2.
Bone decorations of the head of the bed at the southeast corner of the room.
Decorazioni in
osso della testata del letto presso l’angolo sud-est dell’ambiente.
Photograph ©
Parco Archeologico di Pompei.
The second bed, also 'high-backed' and with similar dimensions to the first, was placed in the south-east corner of the room, with an east-west orientation. This bed also shows a thick horizontal frame, with iron pins to lock its structure. At the height of the north-west foot, it was possible to recover some of the large iron pins pertaining to the frame, embellished by the presence of circular studs moulded in bone that masked their presence. At the moment, little can be reconstructed of the wooden structure; only its volume can be seen, as the piece of furniture was largely covered by the collapse of the false ceiling following the destructive events of AD 79, as well as being affected by the cutting of a tunnel that was evidently excavated a short time after the destruction. This bed also boasts the presence of wooden headboards on the two sides adjacent to the wall. In this case, the decoration is far more elaborate as it is embellished by the presence of very fine bone inlays. As many as seven millimetric shapes make up the decorative syntax of the panel, on three registers, from simple linear laths to elements in the shape of an Ionic capital, in the shape of a lanceolate leaf with two sepals below, and in the shape of a teardrop.
Il secondo
letto, anch’esso “a spalliera alta” e con dimensioni simili al primo, era posto
nell’angolo sud-est dell’ambiente, con orientamento est-ovest. Anche questo
letto mostra un telaio orizzontale di grande spessore, con perni in ferro a
bloccarne la struttura. All’altezza del piede nord-ovest è stato possibile
recuperare alcuni dei grossi perni in ferro pertinenti all’intelaiatura,
impreziositi dalla presenza di borchie circolari modanate in osso che ne
mascheravano la presenza. Al momento si riesce a ricostruire poco della
struttura lignea, se ne legge solo la volumetria in quanto il mobile è stato in
gran parte coperto dal crollo del controsoffitto avvenuto in seguito agli
eventi distruttivi del 79 d.C. nonché interessato dal taglio di un tunnel scavato
evidentemente a poca distanza temporale dalla distruzione. Anche questo letto
vanta la presenza delle testate lignee sui due lati in adiacenza al muro. In
questo caso la decorazione è ben più elaborata poiché impreziosita dalla
presenza di sottilissimi intarsi in osso. Sono ben sette le forme millimetriche
che compongono la sintassi decorativa del pannello, su tre registri, dai
semplici listelli lineari ad elementi a forma di capitello ionico, a forma di
foglia lanceolata con due sepali sottostanti ed a forma di goccia.

V.3.14 Pompeii. August 2022. Room 16. Letto 1.
Wooden wedge below the foot of the bed.
Zeppa di legno
al di sotto del piede del letto.
Photograph ©
Parco Archeologico di Pompei.

V.3.14 Pompeii. August 2022. Room 16. Letto 1 e letto 2.
At the foot of the first bed, the cast of a probable blanket.
Above the second bed, part of the collapse of the suspended ceiling therefore remains. Here too, through the technique of casts, it was possible to recover the detailed volume of the lath contained in the heart of the mortar of the false ceiling, succeeding in identifying the various bundles composed of a dozen or so thin straws, tied together with a strap and evidently covered with a gauze, probably covered with pitch, that insulated the straws from the damp mortar in which they were sunk. It represents one of the very few material examples of this technique for lightening ceilings, known mainly from Vitruvius, De architectura... VII, 3.
At the foot of the second bed, near the south-west corner, the cinerite has
preserved the trace of the bottom of a wicker basket of just over 30 cm in
diameter as well as a small quadrangular storage unit of approx. 50 x 45 cm in size. The execution of the
casts of these last two pieces of furniture has been arranged in the last few
days.
Ai piedi del
primo letto, il calco di una probabile coperta.
Al di sopra di
questo secondo letto, insiste dunque parte del crollo del controsoffitto. Anche
qui attraverso la tecnica dei calchi, è stato possibile recuperare il volume
dettagliato dell’incannucciata contenuta nel cuore della malta del
controsoffitto, riuscendo ad identificare i diversi
fasci composti da una decina, o poco più, di sottili cannucce, legate tra loro
con un laccetto ed evidentemente rivestite da una garza, probabilmente
impeciata, che isolava le cannucce dalla malta umida in cui affondavano. Esso
rappresenta uno dei pochissimi esempi materiali di tale tecnica di
alleggerimento dei solai, nota principalmente da Vitruvio, De architectura… VII, 3.
Ai piedi del
secondo letto, presso l’angolo sud-ovest, la cinerite ha conservato la traccia
del fondo di una cesta in vimini di poco più di 30 cm di diametro nonché di un
piccolo mobile contenitore quadrangolare di ca. 50 x 45 cm. Di questi ultimi
due elementi d’arredo sono stati disposti in questi giorni l’esecuzione dei
calchi.
Photograph ©
Parco Archeologico di Pompei.