We have constructed the rooms on this page from press material and photos produced by the Parco Archeologico di Pompei.
Our grateful thanks to the Parco Archeologico di Pompei for giving us permission to use their press releases and photos.
According to the Parco Archeologico di Pompei, in 2018 a sumptuous painted 4m x 5m lararium has re-emerged among the lapilli in a room which is still being excavated in Regio V at Pompeii, as part of the consolidation works on the excavation. The beautiful lararium, which is among the most elegant to be found at Pompeii, belongs to a room in a house which had already been partially excavated at the beginning of the twentieth century, and which is accessed from Vicolo di Lucrezio Frontone.
In 2021, an excavation and restoration project of the
Archaeological Park of Pompeii provided for the expansion of the archaeological
investigation to the upper rooms on the first floor, and those on the ground
floor, in front of the lararium, which led to
the discovery of the rooms (two above and two below) which still concealed
additional varied furnishings, of which it has been possible to make casts, and
everyday objects.
Abbiamo costruito gli
ambienti di questa pagina da materiale stampa e foto prodotte dal Parco
Archeologico di Pompei.
Ringraziamo il Parco
Archeologico di Pompei per averci dato il permesso di utilizzare i loro
comunicati stampa e le loro foto.
“Secondo il Parco
Archeologico di Pompei, nel 2018 un sontuoso larario dipinto di circa 4m x Sm
riaffiora tra i lapilli in un ambiente ancora in corso di scavo nella Regio V
di Pompei, nell'ambito dei lavori di consolidamento dei fronti di scavo,
previsti dal Grande progetto Pompei. Il bel larario, tra i più eleganti emersi
a Pompei, è pertinente ad un ambiente di una casa già in parte scavata agli
inizi del Novecento, con accesso dal vicolo di Lucrezio Frontone.
Nel 2021 un progetto
di scavo e di restauro del Parco archeologico di Pompei ha previsto
l’estensione dell’indagine archeologica degli ambienti superiori al primo
livello e quelli del piano terra, posti di fronte al larario, addivenendo alla
scoperta di stanze (due sopra e due sotto) che celavano ancora diversi arredi
di cui è stato possibile realizzare i calchi, e di oggetti di uso quotidiano”.

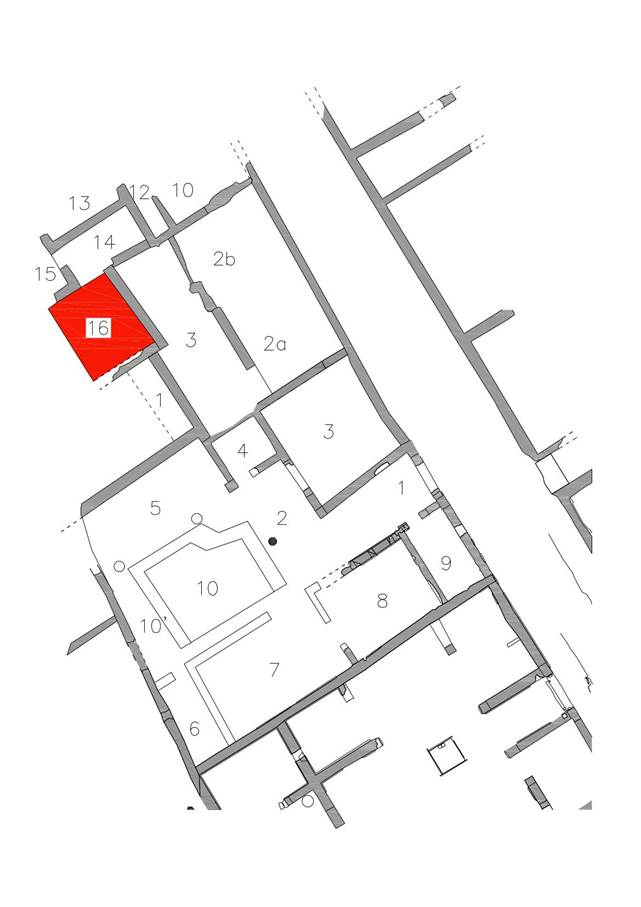
V.3.13 Pompeii. August
2022. Outline plan by Parco Archeologico di Pompeii.
Rooms 1, 2a, 2b, 3 are part of V.3.13.
Rooms 1 to 10 below it are in V.3.12 House of M. Samellius Modestus (?) or Casa della Duchessa d'Aosta.
Rooms 10- 16 above are part of a separate house (see V.3.14) to the north of the Casa del Larario.
Planimetria di massima
del Parco Archeologico di Pompei.
Le stanze 1, 2a, 2b, 3
fanno parte di V.3.13.
Le stanze da 1 a 10
sottostanti si trovano in V.3.12 Casa di M. Samellio
Modesto (?) o Casa della Duchessa d'Aosta.
Le stanze 10-16 di cui
sopra fanno parte di una casa separata (vedi V.3.14) a nord della Casa del
Larario.
Photograph © Parco
Archeologico di Pompei.

V.3.13 Pompeii. August
2022. Detail plan by Parco Archeologico di Pompeii.
Rooms 1, 2a, 2b, 3a, 3b, 3c are part of V.3.13.
Rooms 3 and 4 below are in V.3.12 House of M. Samellius Modestus (?) or Casa della Duchessa d'Aosta.
Rooms 10- 16 above are part of a separate house (see V.3.14) to the north of the Casa del Larario.
Planimetria di
dettaglio a cura del Parco Archeologico di Pompei.
Le stanze 1, 2a, 2b,
3a, 3b, 3c fanno parte di V.3.13.
Le stanze 3 e 4
sottostanti si trovano in V.3.12 Casa di M. Samellio
Modesto (?) o Casa della Duchessa d'Aosta.
Le stanze 10-16 di cui
sopra fanno parte di una casa separata (vedi V.3.14) a nord della Casa del
Larario.
Photograph © Parco
Archeologico di Pompei.
See Press Release PAP A-sumptuous-lararium-has-re-emerged-in-a-room-which-is-still-being-excavated-in-regio-v-at-pompeii/
Vedi comunicati
stampa PAP Sontuoso-larario-emerge-dagli-scavi-della-regio-v

V.3.13 Pompeii. 2018. Room 2a. East wall. A sumptuous painted lararium begins to emerge from the lapilli in a room which was being excavated.
On the left is the edge of the niche and right is painting of flowers.
Parete est. Un sontuoso larario dipinto inizia ad
emergere dai lapilli in una stanza che è stata scavata.
A sinistra è il bordo della nicchia e a destra è
dipinto di fiori.
Photograph ©
Parco Archeologico di Pompei.

V.3.13 Pompeii. 2018. Room 2a.
A sumptuous painted 4m x 5m lararium has re-emerged among the lapilli in a room which is still being excavated in Regio V at Pompeii.
This was a room used for worship, whose arrangement is still to be defined, given the unusual position of certain elements such as the basin bordered by a small garden, located at the centre of the room, and the mezzanine space which closes off one of the sides, and which is still entirely to be excavated.
Un sontuoso
larario dipinto di circa 4m x 5m riaffiora tra i lapilli in un ambiente ancora
in corso di scavo nella Regio V di Pompei.
Si trattava di
una stanza adibita al culto, ancora tuttavia da definire nella disposizione
degli spazi, considerata
la presenza
insolita di alcuni elementi come la vasca bordata dal giardinetto, posta al
centro dell'ambiente e
lo spazio
soppalcato che chiude uno dei lati, ancora interamente da scavare.
Photograph ©
Parco Archeologico di Pompei.

V.3.13 Pompeii. 2018. Room 2a. Lararium. East wall.
At the centre of a wall featuring idyllic landscapes and lush natural scenes, including plants and birds, we find a sacred shrine with figures of the Lares –
the protectors of the house - painted on the sides.
Parete est. Al
centro di una parete con paesaggi idilliaci e una lussureggiante natura con
piante e uccelli, si trova l'edicola sacra con ai lati dipinte le figure dei
"Lari" protettori della casa.
Photograph ©
Parco Archeologico di Pompei.

V.3.13 Pompeii. 2018. Room 2a. Lararium. East wall.
Sacred shrine with figures of the Lares painted on the sides and serpents below.
Parete est. L'edicola
sacra con ai lati dipinte le figure dei "Lari, e, al di sotto, due grandi
serpenti "agatodemoni".
Photograph ©
Parco Archeologico di Pompei.

V.3.13 Pompeii. 2018. Room 2a. Lararium. East wall.
Sacred shrine with figures of the Lares painted on the sides.
Parete est. L'edicola
sacra con ai lati dipinte le figure dei "Lari”.
Photograph ©
Parco Archeologico di Pompei.

V.3.13 Pompeii. 2018. Room 2a. Lararium. East wall.
Below, we see two large 'agathodaemon' serpents (good daemons), which symbolise prosperity and good luck.
Parete est. Al
di sotto, due grandi serpenti "agatodemoni" (demone buono), simbolo
di prosperità e buon auspicio.
Photograph ©
Parco Archeologico di Pompei.

V.3.13 Pompeii. 2018. Room 2a. Lararium. East wall.
Massimo Osanna points to the painted lararium wall, with the wall with the painted animal scene behind him.
Under the painted altar is a small altar found in the small garden.
Parete est. Massimo
Osanna indica la parete dipinta del larario con la parete con la scena animale
dipinta dietro di lui.
Sotto l'altare
dipinto è un piccolo altare trovato nel piccolo giardino.
Foto per gentile
concessione di Ciro Fusco / Parco Archeologico di Pompei.

V.3.13 Pompeii. 2018. Room 2a. Lararium. East wall.
Painted plants blend and mix in the room with the real ones which must have thrived in the flowerbed under the lararium.
A painted peacock seems to tread the earth of the garden.
Parete est. Si
mescolano e confondono nell'ambiente, piante dipinte con quelle vere che
dovevano crescere rigogliose nell'aiuola sottostante il larario, mentre un
pavone dipinto sembra calpestare il terreno del giardino.
Photograph ©
Parco Archeologico di Pompei.

V.3.13 Pompeii. 2018. Room 2a. Lararium. East wall.
The painted altar with offerings (a pinecone and eggs) between the two serpents, is mirrored by a stone arula (small altar) found in the small garden.
Parete est. L'ara
dipinta al centro dei due serpenti, con le offerte (la pigna e le uova), trova
corrispondenza in un'arula (piccolo altare) in pietra
ritrovata nel giardinetto.
Photograph ©
Parco Archeologico di Pompei.

V.3.13 Pompeii. 2018. Room 2a. Lararium. East wall.
A stone arula (small altar) found in the small garden, and upon which traces of burnt offerings can still be seen. These offerings were made to honour the domestic gods, in order to guarantee the wellbeing and prosperity of all the family. A painted peacock seems to tread the earth of the garden.
Parete est. Un'arula (piccolo altare) in pietra ritrovata nel giardinetto
e sulla quale ancora insistono tracce di bruciato delle offerte che servivano a
onorare le divinità domestiche, a garanzia del benessere e della prosperità di
tutta la famiglia. Un pavone dipinto sembra calpestare il terreno del giardino.
Photograph ©
Parco Archeologico di Pompei.

V.3.13 Pompeii. 2018. Room 2a. Lararium. East wall. View of the lararium niche with the Lares.
Parete est. Vista
della nicchia del larario con i Lari.
Photograph ©
Parco Archeologico di Pompei.

V.3.13 Pompeii.
2018. Room 2a. Lararium.
South-east corner of room with lararium painting on east
wall and animal scene on the south wall.
Angolo
sud-est della stanza con dipinto di lararium sulla parete est e scena animale
sulla parete sud.
Photograph ©
Parco Archeologico di Pompei.

V.3.13 Pompeii. 2018. Room 2a. Lararium.
On the south wall is a hunting scene on a red background, with various light-coloured animals which surround a black boar, seeming to symbolically allude to the victory of the forces of good over evil.
Sulla parete sud, invece, una scena di caccia su
fondo rosso con diversi animali di colore chiaro che circondano un cinghiale
nero, sembra alludere simbolicamente alla vittoria delle forze del bene sul
male.
Photograph © Parco Archeologico di Pompei.

V.3.13 Pompeii.
2018. Room 2a. Lararium. South wall. Painting of a bird.
Parete sud. Dipinto
di un uccello.
Photograph ©
Parco Archeologico di Pompei.

V.3.13 Pompeii. 2018. Room 2a. West wall. Lararium. Painting of a peacock and cherries
under a window grating.
Parete
ovest. Lararium. Dipinto di un pavone e ciliegie sotto una grata della
finestra.
Photograph ©
Parco Archeologico di Pompei.
In 2021, an excavation and restoration
project of the Archaeological Park of Pompeii provided for the expansion of the
archaeological investigation to the upper rooms on the first floor, and those
on the ground floor, in front of the lararium, which led to
the discovery of the rooms (two above and two below) which still concealed
additional varied furnishings, of which it has been possible to make casts, and
everyday objects.
“In the Roman Empire there was a significant proportion of
the population which fought for their social status and for whom the ‘daily
bread’ was anything but taken for granted. It was a social class that was
vulnerable during political crises and famines, but also ambitious to climb the
social ladder. In the House of the Lararium at Pompeii, the owner was able to
embellish the courtyard with the lararium and the basin for the cistern with
exceptional paintings, yet evidently funds were insufficient to decorate the
five rooms of the house, one of which was used for storage. In the other rooms,
two on the upper floor which could be reached by a mezzanine, we have
discovered an array of objects, some of which are made of precious materials
such as bronze and glass, while others were for everyday use. The wooden
furniture, of which it has been possible to make casts, was extremely simple.
We do not know who the inhabitants of the house were, but certainly the culture
of otium (leisure) which inspired the wonderful
decoration of the courtyard represented for them more a future they dreamed of
than a lived reality.”
Massimo Osanna, Director General of
Museums.
“Nel 2021 un
progetto di scavo e di restauro del Parco archeologico di Pompei, ha previsto
l’estensione dell’indagine archeologica degli ambienti superiori al primo
livello e quelli del piano terra, posti di fronte al larario, addivenendo alla
scoperta di stanze (due sopra e due sotto) che celavano ancora diversi arredi
di cui è stato possibile realizzare i calchi, e di oggetti di uso quotidiano.
Nell’impero romano c’era un’ampia fetta della popolazione che lottava per il proprio status
sociale e per cui il ‘pane quotidiano’ era tutt’altro che scontato. – spiega il Direttore del Parco
archeologico, Gabriel Zuchtriegel - Un ceto vulnerabile durante crisi
politiche e carestie, ma anche ambizioso di salire sulla scala sociale. Nella
casa del Larario a Pompei, si riuscì a far adornare il cortile con il larario e
con la vasca per la cisterna con pitture eccezionali, ma evidentemente i mezzi
non bastavano per decorare le cinque stanze della casa, una delle quali fungeva
da deposito. Nelle altre stanze, due al piano superiore e raggiungibili tramite
un soppalco, abbiamo trovato un misto di oggetti, alcuni di materiali preziosi
come il bronzo e il vetro, altri di uso quotidiano. I mobili di legno di cui è
stato possibile eseguire dei calchi sono di estrema semplicità. Non conosciamo
gli abitanti della casa ma sicuramente la cultura dell’ozio a cui si ispira la
meravigliosa decorazione del cortile per loro era più un futuro che sognavano
che una realtà vissuta.”
Massimo Osanna,
Direttore generale dei Musei.

V.3.13 Pompeii. 2022. Upper floor.
The upper rooms were excavated first, however the materials
discovered were primarily found where they had fallen into the area of the
rooms below.
Amongst these, of great documentary value is the small
cast of the waxed tablets. A truly unique find, it has allowed us to
create the first example of a cast which allows a perfect yield of both volume
and detail. It is a group of seven triptychs, tied together by a small cord
both horizontally and vertically. The polyptych had probably been stored on a
shelf, together with other ceramic and bronze objects.
Discovered within a large cupboard which collapsed during the eruption were various other well-preserved ceramic vessels for everyday use in the kitchen and the canteen, but also vessels in sigillata (a type of Roman fine table ceramic) and in glass. Alongside this was a set of bronze vessels, among which a well-preserved pelvis (bowl) with a beaded base and handles with palmette attachments particularly stands out. There are in addition two bronze jugs, one of which features a handle with a sphinx-shaped attachment above and a lion’s head attachment below.
Gli ambienti
superiori sono stati scavati per prima, tuttavia i materiali rinvenuti sono
stati prevalentemente ritrovati in fase di caduta nella volumetria degli
ambienti sottostanti.
Tra questi di
gran valore documentario è il piccolo calco delle tavolette cerate. Un unicum
per la tipologia di ritrovamento, che ne ha permesso di realizzare il primo
esemplare di calco, che ne consente la perfetta restituzione della volumetria e
dei dettagli. Si tratta di un gruppo di sette trittici, legati tra essi da un
cordino sia in senso orizzontale che verticale. Il polittico doveva
probabilmente essere conservato su qualche scaffale, unitamente ad altri
oggetti in ceramica e in bronzo.
Contenute
all’interno di un grosso armadio, crollato durante l’eruzione, sono inoltre
state recuperate diverse forme ceramiche d’uso comune, da cucina e da mensa, ma
anche forme in sigillata (tipo di ceramica romana fine da mensa) ed in vetro,
molto ben conservate. A queste si affianca un piccolo set di forme in bronzo,
tra cui spicca una ben conservata pelvis (bacile) con
fondo perlinato ed anse con attacchi a palmette. Con essa anche due brocche
bronzee, una delle quali con ansa con applique sormontante a forma di sfinge ed
attacco inferiore a testa leonina.
Photograph ©
Parco Archeologico di Pompei.

V.3.13 Pompeii. 2022. Upper floor.
In addition to these metallic vessels, an incense burner in the shape of a cradle was discovered in excellent condition, with the polychrome pictorial decoration perfectly preserved, still revealing details such as the lips, beard and hair of the male subject, and geometric decoration on the exterior.
Oltre alle
forme metalliche, anche il ritrovamento di un bruciaprofumi in forma di culla,
in ottimo stato conservativo, con la decorazione pittorica policroma
perfettamente conservata che ancora mostra i dettagli di labbra, barba e
capigliatura del soggetto maschile e decorazione geometrica sull'esterno.
Photograph ©
Parco Archeologico di Pompei.
In the rooms of the floor below all of the furnishings were
able to be recovered, since the voids created in the cinerite during the excavation
phase made it possible to create casts of the furniture (the technique involves
liquid plaster being poured into the voids, which once solidified recreates the
shapes of the objects or of bodies).
Gli ambienti
sottostanti hanno permesso di recuperare l’intero arredo della stanza, in
quanto i vuoti creatisi in fase di scavo nella cinerite, hanno consentito
l’esecuzione dei calchi del mobilio (la tecnica prevede che il gesso liquido
venga versato nei vuoti restituendo le forme degli oggetti o dei corpi, una
volta consolidatosi.

V.3.13 Pompeii. 2022. Room 2b. Remains of wooden cabinet between room 3b (left) and 3c (right).
Resti di un
armadio di legno tra la stanza 3b (a sinistra) e la 3c (a destra).
Photograph ©
Parco Archeologico di Pompei.

V.3.13 Pompeii. 2022. Room 2b. Remains of wooden cabinet.
Photograph ©
Parco Archeologico di Pompei.
What is rather surprising however, is
what it has been possible to recover in the southern corner of the small
hallway, in front of the kitchen.
Preserved within the cinerite was a wooden cabinet with at
least four doors. The upper part of the piece, and the front doors, were
compromised by the collapse of the ceiling above, with tiles, flooring and
plaster which destroyed the upper levels, although their outlines can be
perceived on the rear wall.
The piece of furniture in question is about 2 metres high, with at least five shelves. On the highest one, small jugs and amphorae, as well as glass plates, have been found, while the excavation of the lower levels is currently in progress.
Del tutto
sorprendente è invece ciò che è stato possibile recuperare all’esterno
dell’ambiente, nell’angolo sud del breve disimpegno, di fronte alla cucina.
Conservatosi
all’interno della cinerite, si è messo in luce un armadio ligneo con almeno
quattro ante. La parte superiore del mobile e gli sportelli anteriori sono
risultati compromessi dal crollo del solaio soprastante, con tegole, pavimenti
ed intonaci che ne hanno sventrato i livelli superiori di cui però sono
comunque percepibili le forme sul muro retrostante.
Si tratta di
un mobile di circa 2 m di altezza, con almeno cinque ripiani. Su quello più in
alto sono stati rinvenuti brocchette, anforette e piatti in vetro, mentre è
tuttora in corso lo scavo dei livelli inferiori.

V.3.13 Pompeii. 2022. Room 2b. Remains of wooden cabinet and contents.
Resti di armadio
in legno e contenuto.
Photograph ©
Parco Archeologico di Pompei.

V.3.13 Pompeii. 2022. Room 2b. Remains of wooden cabinet.
On the highest shelf, small jugs and amphorae, as well as glass plates, have been found.
Resti di armadio in
legno.
Sul ripiano più alto
sono state rinvenute piccole brocche e anfore, oltre a lastre di vetro.
Photograph ©
Parco Archeologico di Pompei.

V.3.13 Pompeii. 2022. Room 2b. Remains of hinges, jugs and amphorae
in wooden cabinet.
Resti di cerniere,
brocche e anfore in armadio ligneo.
Photograph ©
Parco Archeologico di Pompei.

V.3.13 Pompeii. 2022. Room 2b, west wall between 3b and 3c.
Remains of painting of dog with cithara and inscription above found next to the wooden cabinet.
Resti di un dipinto
di cane con cetra e iscrizione sopra trovati accanto al gabinetto di legno.
Photograph ©
Parco Archeologico di Pompei.

Reconstruction of a
cupboard/cabinet (originally made of wood) with its original contents, found in
this house. There was a large amount of crockery mainly pottery and glass. On shelves
3 and 4 are the remains of carbonised wooden planks.
Ricostruzione di un armadio/mobile (originariamente
in legno) con il suo contenuto originale, trovato in questa casa. C'era una grande
quantità di stoviglie, principalmente ceramiche e vetro. Sugli scaffali 3 e 4 ci
sono i resti di assi di legno carbonizzato.
On display in Palaestra in exhibition entitled – “L’altra
Pompei, vite comuni all’ombra del Vesuvio”.
Photo courtesy of Giuseppe Ciaramella.

Oggetti in vetro restaurati e mensola in legno carbonizzato
nella ricostruzione di un armadio/armadio.
Photo courtesy of Giuseppe Ciaramella.
On display in
exhibition in Palaestra entitled “L’altra Pompei, vite comuni all’ombra del
Vesuvio”.

V.3.13 Pompeii. March 2024. Description card for cabinet and its contents in exhibition entitled –
“L’altra
Pompei, vite comuni all’ombra del Vesuvio”. Photo
courtesy of Giuseppe Ciaramella.

V.3.13 Pompeii. 2022. Room 3b, bedroom with casts of bed, wooden chest, table and roof beams.
One of the rooms features a bed, of which parts of the frame have been preserved, as well as the volume of the pillow, of which the texture of the fabric is still visible. The type of bed is identical to that of three beds discovered in the Villa of Civita Giuliana in the ‘Room of the Slaves’ - it comprises an extremely simple cot, devoid of decoration, which was without a mattress and could be dismantled. One stretched out on a form of rope netting, of which traces are preserved in the plaster cast, over which a piece of fabric was laid.
Una delle stanze presenta un letto, di cui si
conservano parti del telaio, nonché il volume del cuscino, di cui è ancora
visibile la trama del tessuto. La tipologia del letto è identica a quella dei
tre letti scoperti l’anno scorso nella villa di Civita Giuliana nella “Stanza
degli schiavi”: si tratta di una brandina estremamente semplice, priva di
elementi di decorazione, smontabile e senza materasso; ci si stendeva su una
rete di corde, delle quali si conservano tracce nel calco realizzato, e su un
tessuto poggiato al di sopra di essa.
Photograph © Parco Archeologico di Pompei.

V.3.13 Pompeii. 2022.
Room 3b, bedroom.
Casts of remains of bed (left), chest (right) and table (front).
Calchi di resti di letto (a sinistra), baule (a
destra) e tavolo (davanti).
Photograph © Parco Archeologico di Pompei.

V.3.13 Pompeii. 2022.
Room 3b, bedroom. Cast of wooden chest, table and roof beams.
Alongside the bed was a bipartite wooden chest, left open at the moment when the owners fled, and onto which beams and planks from the ceiling above collapsed.
Accanto al letto era un baule ligneo bipartito,
lasciato aperto nel momento della fuga e su cui sono crollati travi e tavole
del solaio soprastante.
Photograph © Parco Archeologico di Pompei.

V.3.13 Pompeii. 2022. Room 3b, bedroom. Cast of end of wooden chest, nearest to bed.
Calco dell'estremità della cassa di legno, più
vicina al letto.
Photograph © Parco Archeologico di Pompei.

V.3.13 Pompeii. 2022.
Room 3b, bedroom.
The chest held a small sigillata plate and a double-spouted lantern with a bas-relief depiction of the transformation of Zeus into an eagle.
Il baule conservava un piattino in sigillata (tipo
di ceramica romana fine da mensa) e una lucerna a doppio beccuccio con
bassorilievo raffigurante la trasformazione di Zeus in aquila.
Photograph © Parco Archeologico di Pompei.

V.3.13 Pompeii. 2022.
Room 3b, bedroom. Chest contents.
A small sigillata plate and a double-spouted lantern.
Un piattino in sigillata (tipo di ceramica romana
fine da mensa) e una lucerna a doppio beccuccio’
Photograph © Parco Archeologico di Pompei.

V.3.13 Pompeii. 2022.
Room 3b, bedroom. Chest contents.
A small sigillata plate and a double-spouted lantern with a bas-relief depiction of the transformation of Zeus into an eagle.
Un piattino
in sigillata (tipo di ceramica romana fine da mensa) e una lucerna a doppio
beccuccio con bassorilievo raffigurante la
trasformazione di Zeus in aquila.
Photograph © Parco Archeologico di Pompei.

V.3.13 Pompeii. 2022.
Room 3b, bedroom.
A double-spouted lantern with a bas-relief depiction of the transformation of Zeus into an eagle was found in the chest.
Una lucerna a doppio beccuccio con bassorilievo
raffigurante la trasformazione di Zeus in aquila.
Photograph © Parco Archeologico di Pompei.

V.3.13 Pompeii. 2022.
Room 3b, bedroom.
Next to the chest was a small, circular three-footed table, upon which was a ceramic cup containing two glass ampoules, a small sigillata plate and another small glass plate. At the foot of the table, a glass ampoule as well as small jugs and amphorae testify to the everyday use of the room. The furniture and ceramic vessels were found in the position they must have been left in when the owners fled, giving us a snapshot of that moment.
Accanto ad esso, un tavolino circolare a tre piedi
con sopra ancora una coppa in ceramica contenente due ampolline in vetro, un
piattino in sigillata ed un altro piattino in vetro. Ai piedi del tavolino,
un’ampolla in vetro e brocchette ed anforette che testimoniano un uso
quotidiano della stanza. Il mobilio e le forme ceramiche sono stati trovati
nella posizione in cui dovevano essere nel momento della fuga, restituendoci
una fotografia di quell’istante.
Photograph © Parco Archeologico di Pompei.

V.3.13 Pompeii. 2022.
Room 3b, bedroom.
At the foot of the table was a glass ampoule.
Ai piedi del tavolino, c’era un’ampolla in vetro
Photograph © Parco Archeologico di Pompei.

V.3.13 Pompeii. 2022.
Room 3b, bedroom.
At the foot of the table were also small jugs and amphorae.
Ai piedi del
tavolino, c’erano anche brocchette ed anforette.
Photograph © Parco Archeologico di Pompei.

V.3.13 Pompeii. 2022.
Room 3b, bedroom.
Next to the chest was a small, circular three-footed table, upon which was a ceramic cup containing two glass ampoules, a small sigillata plate and another small glass plate.
Accanto ad il baule c’era un tavolino circolare a
tre piedi con sopra ancora una coppa in ceramica contenente due ampolline in
vetro, un piattino in sigillata ed un altro piattino in vetro.
Photograph © Parco Archeologico di Pompei.

V.3.13 Pompeii. 2022.
Room 3b, bedroom.
Ceramic
cup containing two glass ampoules.
Una coppa in ceramica contenente due ampolline in
vetro.
Photograph © Parco Archeologico di Pompei.

V.3.13 Pompeii. 2022.
Room 3b, bedroom.
On the table was a ceramic cup containing two glass ampoules, a small sigillata plate and another small glass plate.
Sul tavolino circolare a tre piedi c’era una coppa in ceramica contenente due ampolline in vetro,
un piattino in sigillata ed un altro piattino in vetro.
Photograph © Parco Archeologico di Pompei.

Room
3b, casts of the furnishings (copies). Photo
courtesy of Giuseppe Ciaramella.
On
display in exhibition in Palaestra entitled “L’altra Pompei, vite comuni
all’ombra del Vesuvio”.

V.3.13 Pompeii. March 2024. Room 3b, casts of the furnishings (copies).
On
display in exhibition in Palaestra entitled “L’altra Pompei, vite comuni
all’ombra del Vesuvio”.
Photo
courtesy of Giuseppe Ciaramella.

Room 3b, on the left is the cast of the remains of a bed with a headboard to which a pillow is attached.
On the right is a copy of an open wooden trunk, on which the beams and boards of the floor above have collapsed.
Next to it, is a round three-legged table (see photo above this one).
On display in exhibition in Palaestra entitled “L’altra Pompei, vite comuni all’ombra del Vesuvio”. Photo courtesy of Giuseppe Ciaramella.

V.3.13 Pompeii. March 2024. Room 3b, description card in exhibition entitled –
“L’altra Pompei,
vite comuni all’ombra del Vesuvio”. Photo courtesy of Giuseppe Ciaramella.

V.3.13 Pompeii. 2022. Room 3c.
The other excavated room seems to have been a form of
storage room or warehouse. It is the only one of the rooms to not have
plastered walls, and even the floor consists only of simple beaten earth.
It has been possible to create two casts, one of which yielded the barely perceptible shape of a shelf onto which the amphora had been crammed, while the second revealed a pile of wooden planks bound together with cords. The planks, made of wood of differing species, and of different sizes and finishes, were probably used for different purposes, from furniture to repairs on domestic and service buildings.
L’altro
ambiente scavo sembra essere un locale deposito o magazzino. È l’unico degli
ambienti a non avere le pareti intonacate ed anche il piano pavimentale è
semplice terreno battuto. E’ stato possibile realizzare due calchi, di cui uno
ha restituito la forma appena percepibile di uno scaffale in cui l’anforame era stipato, mentre il secondo ha restituito un
accumulo di fasciame ligneo legati da corde. Assi di legno di essenze diverse,
con diverso taglio e rifiniture, probabilmente per usi disparati, dal mobilio a
lavori di riparazione su edifici domestici e di servizio.
Photograph ©
Parco Archeologico di Pompei.