
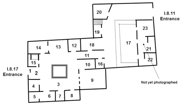
I.8.17 Pompeii. Plan based on the room numbers used in P.P.M.
See Carratelli, G. P., 1990-2003. Pompei: Pitture e Mosaici: Vol. I. Roma: Istituto della enciclopedia italiana, p. 847.
The room numbers are those referred to on the pompeiiinpictures pages for I.8.17.
This plan is to help you accurately locate the rooms shown in the photographs of this house.
The plan also shows the location of the rear entrance at I.8.11.
Please be aware that the room numbers shown may differ from any other plans or records both published and unpublished.